4 bedroom Town house Sold STC

Saddlecote Close, Manchester, M8

£295,000 | Sold STC

4 Bedrooms
3 Bathrooms
2 Receptions
Share Property

Manchester North

31 Bury New Road, 
Sedgley Park, 
Prestwich, 
M25 9JY, 
Standout Features

Property Description

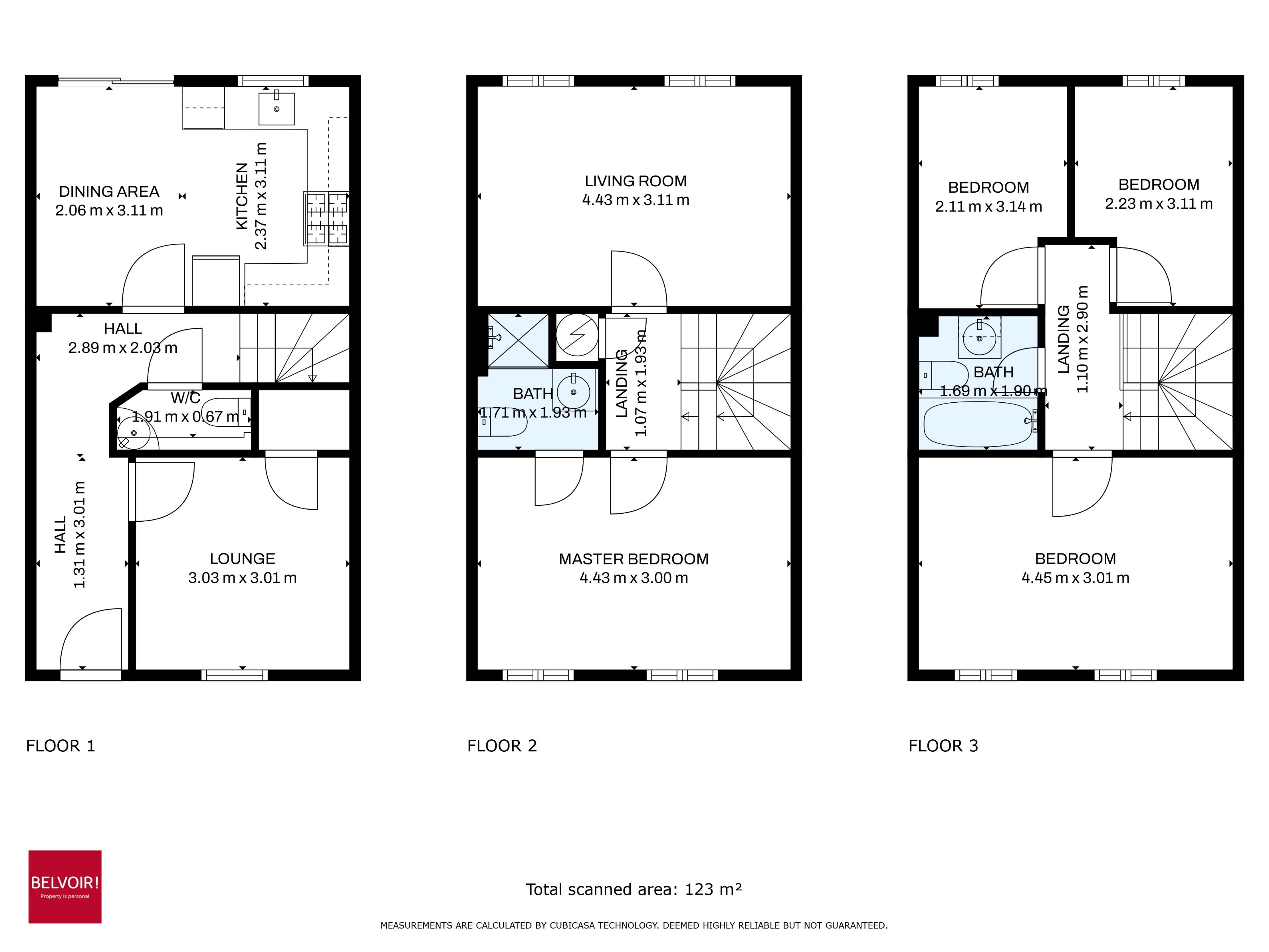
This modern four bedroom three storey town house is situated on a modern development close to all local amenities including North Manchester General Hospital, schools, shops and transport links. The property benefits from spacious living accommodation and briefly comprises; entrance hall, downstairs WC, two reception rooms, fully fitted kitchen diner, four bedrooms with en suite shower to master bedroom, family bathroom with three piece suite, double glazing and gas central heating throughout, gardens to the front and rear and a separate single garage.  EPC rating: C. Council tax band: D, Tenure: Freehold,

Additional Information
EPC Rating:
C
Tenure:
Freehold
Council Tax Band:
D

Mortgage calculator

Calculate Your Stamp Duty
£
Results
Stamp Duty To Pay:
Effective Rate:
Tax Band % Taxable Sum Tax

Saddlecote Close, Manchester, M8

Struggling to find a property? Get in touch and we'll help you find your ideal property.

Interested in viewing this property?
Book a Viewing
Main menu