4 bedroom Semi-detached house Sold STC

Oriel Gardens, Salford, M7

£345,000 | Sold STC

4 Bedrooms
4 Bathrooms
1 Receptions
Share Property

Manchester North

31 Bury New Road, 
Sedgley Park, 
Prestwich, 
M25 9JY, 
Standout Features

Property Description

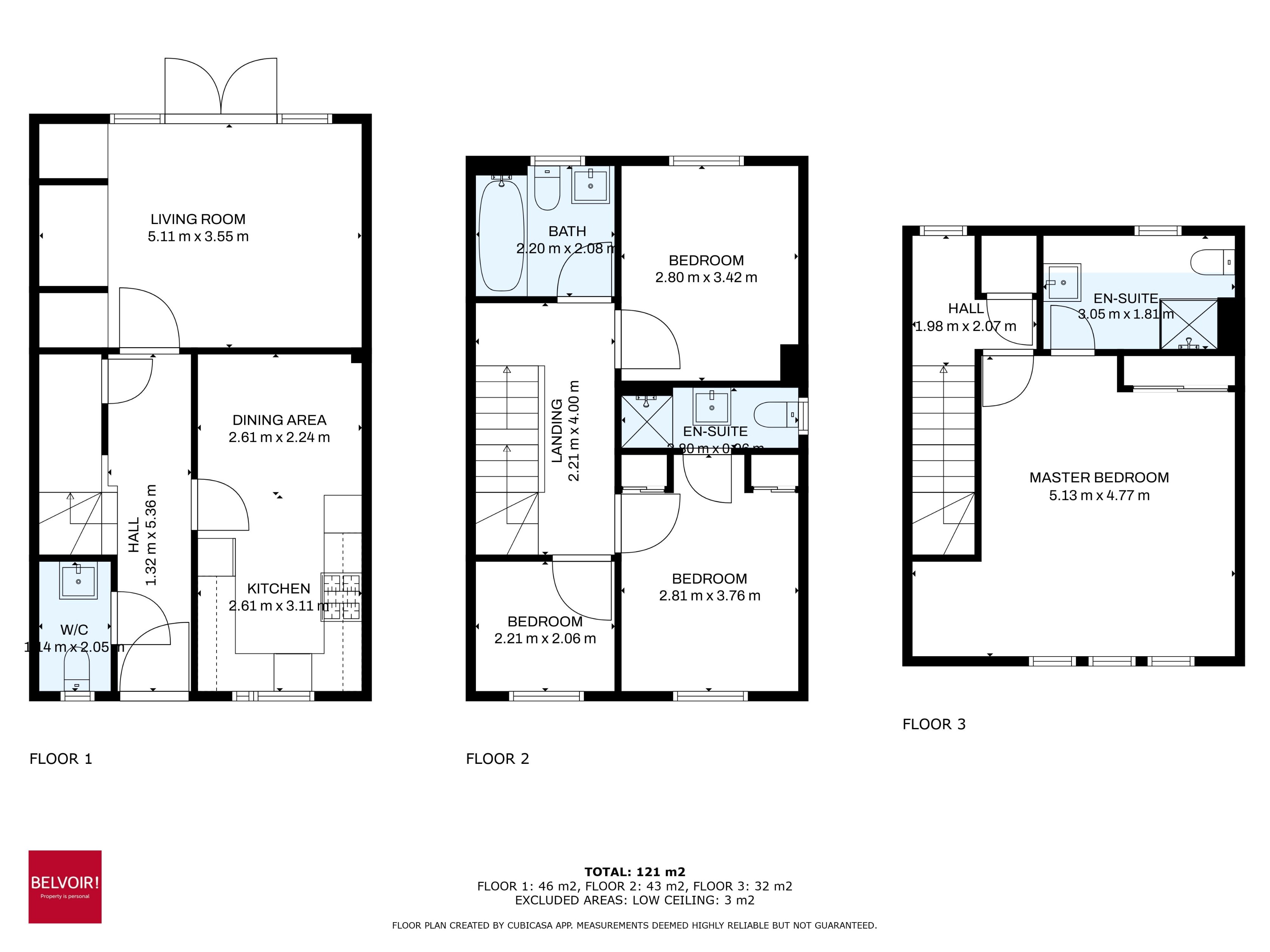
Belvoir are delighted to offer for sale this beautifully presented four bedroom home situated on an attractive and modern gated development. 

Spread over three floors this family home benefits from spacious living accommodation including four good sized bedrooms and three bathrooms as well as allocated parking for two cars and rear patio garden.

The property is located close to transport links, local amenities and within easy reach of both Manchester City Centre and the motorway network and briefly comprises; entrance hallway, lounge, fully fitted kitchen diner with integrated appliances, a fantastic master bedroom with en-suite shower room, second double bedroom with en-suite shower room, third double bedroom, single bedroom and a modern family bathroom suite, double glazing and gas central heating throughout, rear patio garden, alarm,  secure intercom system and allocated parking.

Further information: Council tax band  C  EPC rating: C. Council tax band: C, Tenure: Leasehold, Annual ground rent: £150, Annual service charge: £436, Length of lease (remaining): 235 years 2 months,

Additional Information
EPC Rating:
C
Tenure:
Leasehold
Ground Rent:
£150 per year
Service Charge:
£436 per year
Council Tax Band:
C

Mortgage calculator

Calculate Your Stamp Duty
£
Results
Stamp Duty To Pay:
Effective Rate:
Tax Band % Taxable Sum Tax

Oriel Gardens, Salford, M7

Struggling to find a property? Get in touch and we'll help you find your ideal property.

Interested in viewing this property?
Book a Viewing
Main menu