2 bedroom Detached house Sold STC

Lancaster Avenue, Whitefield, M45

Fixed Price £230,000 | Sold STC

2 Bedrooms
2 Bathrooms
1 Receptions
Share Property

Manchester North

31 Bury New Road, 
Sedgley Park, 
Prestwich, 
M25 9JY, 
Standout Features

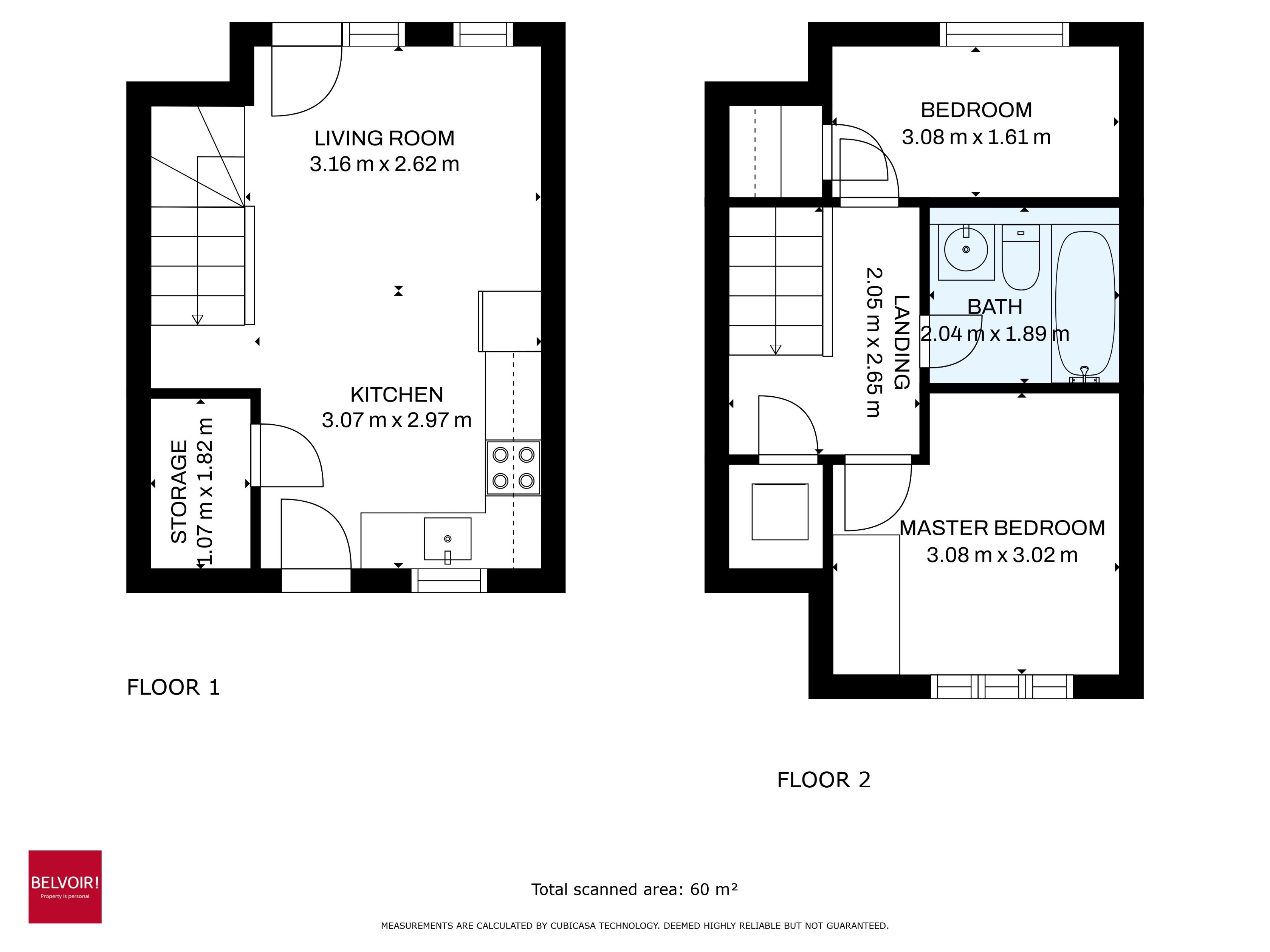
Property Description

This modern two bedroom detached home is located within a popular residential area in the heart of Whitefield and situated within easy walking distance of the local Metro link station and close to all local amenities including schools, shops and public transport links. The property which was built in 2021 benefits from an open plan living area as well as two double bedrooms, two bathrooms and front and rear gardens with a driveway for off street parking and briefly comprises; entrance hallway, lounge, fully fitted kitchen with integrated oven/cooker, hob and extractor hood, downstairs wc, two double bedrooms with integrated cupboard, family bathroom with bath/shower, boiler room, alarm, gas central heating and double glazing throughout and front and rear gardens with driveway for one vehicle.    EPC rating: C. Council tax band: B, Tenure: Freehold,

Additional Information
EPC Rating:
C
Tenure:
Freehold
Council Tax Band:
B

Mortgage calculator

Calculate Your Stamp Duty
£
Results
Stamp Duty To Pay:
Effective Rate:
Tax Band % Taxable Sum Tax

Lancaster Avenue, Whitefield, M45

Struggling to find a property? Get in touch and we'll help you find your ideal property.

Interested in viewing this property?
Book a Viewing
Main menu