5 bedroom Detached house For Sale

Field Farm, Stapleford, Stapleford, NG9

£609,995 | For Sale

5 Bedrooms
3 Bathrooms
2 Receptions
Share Property

Long Eaton and Beeston

31 Tamworth Road, 
Long Eaton, 
NG10 1JF, 
Standout Features

Property Description

Field Farm is superbly positioned for countryside living. The stunning mix of stylish properties have been designed to reflect the rich history and character of the surrounding area. Residents of Field Farm will enjoy a lifestyle that perfectly blends tranquil countryside and the nearby bustling town of Stapleford.

Steeped in rich history, the town of Stapleford makes a perfect location for a range of purchasers to call home and is just a short distance from the idyllic development. Field Farm features beautiful landscaping, high-end craftmanship and gives residents easy access to explore the idyllic countryside that surrounds it.

With excellent commuter links to the M1, A52 and A60, as well as an abundance of national and independent shops, eateries and attractions on its doorstep, Field Farm is set to be a popular development with a welcoming, community-feel. The area also benefits from exemplary primary, secondary and higher education institutions, all within a short drive.

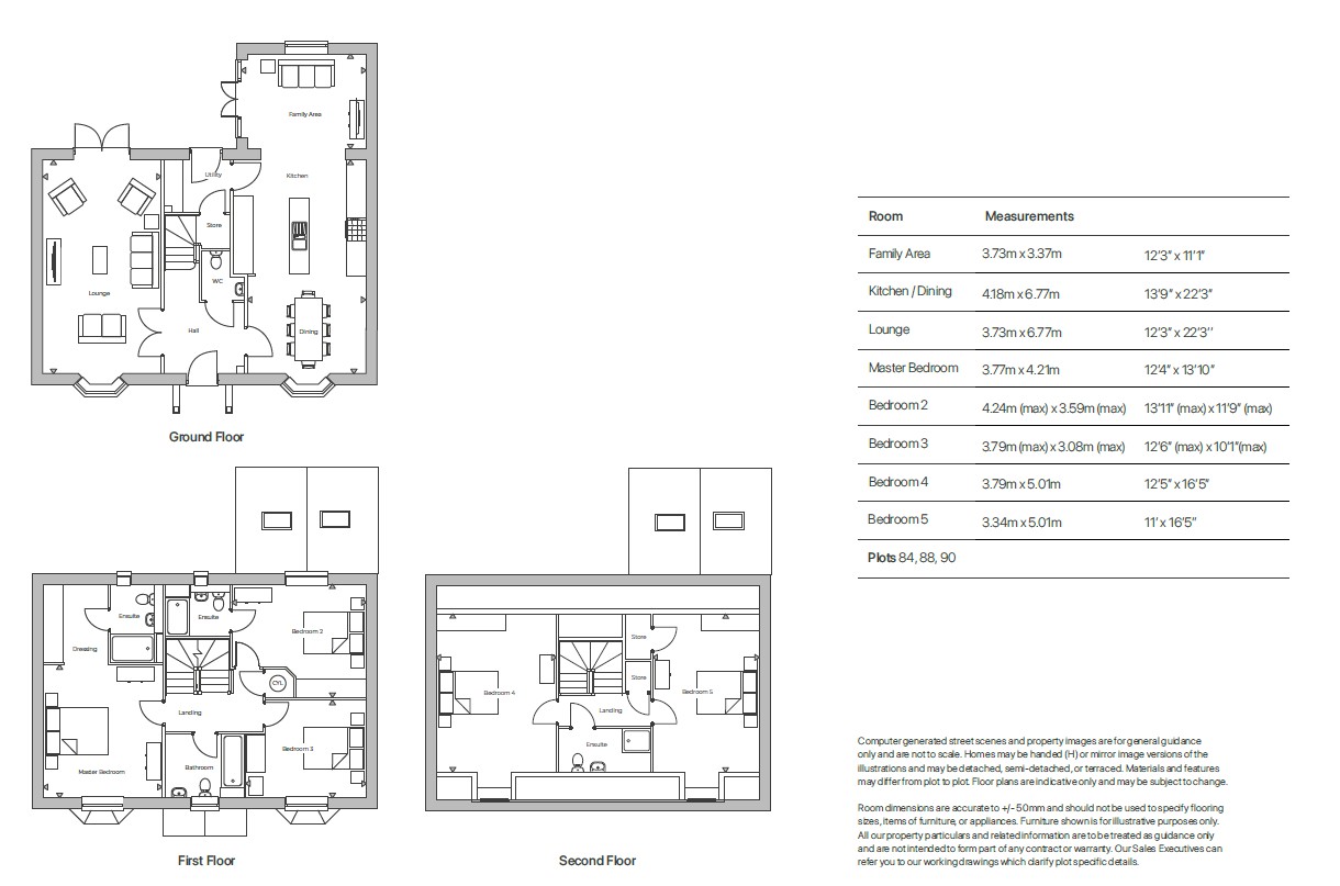
The Bardon is a stunning three-storey double-fronted family home which features five bedrooms. The ground floor boasts a full-length kitchen, dining and family area with useful utility room and plenty of storage, as well as a spacious lounge with bay window and French doors to the rear garden. On the first floor, you can find a well-appointed family bathroom and the master bedroom, which includes a dressing area and ensuite. Bedroom two also benefits from its own ensuite. Continuing up to the second floor, you’ll find two further bedrooms which share an ensuite and plenty of storage space.EPC to be confirmed as it is a new build.

Council Tax to be confirmed as it is a new build.

Disclaimer-

These particulars are issued in good faith but do not constitute representations of fact or form part of any offer or contract. The matters referred to in these particulars should be independently verified by prospective buyers or tenants. Neither Belvoir nor any of its employees or agents has any authority to make or give any representation or warranty whatever in relation to this property.

We endeavour to make our sales particulars accurate and reliable, however, they do not constitute or form part of an offer or any contract and none is to be relied upon as statements of representation or fact. Any services, systems and appliances listed in this specification have not been tested by us and no guarantee as to their operating ability or efficiency is given. All measurements have been taken as a guide to prospective buyers only, and are not precise. If you require clarification or further information on any points, please contact us, especially if you are travelling some distance to view. Fixtures and fittings other than those mentioned are to be agreed with the seller by separate negotiation. EPC rating: Unknown. Council tax band: X, Tenure: Freehold,

Additional Information
Tenure:
Freehold

Mortgage calculator

Calculate Your Stamp Duty
£
Results
Stamp Duty To Pay:
Effective Rate:
Tax Band % Taxable Sum Tax

Field Farm, Stapleford, Stapleford, NG9

Struggling to find a property? Get in touch and we'll help you find your ideal property.

Interested in viewing this property?
Book a Viewing
Main menu