5 bedroom Detached house For Sale

Brook View, Newport, TF10

Offers in excess of £500,000 | For Sale

5 Bedrooms
3 Bathrooms
2 Receptions
Share Property

Telford

Suite 2.12 Grosvenor House Central Park, 
Telford, 
TF2 9TW, 
Standout Features

Property Description

Brook View, Newport

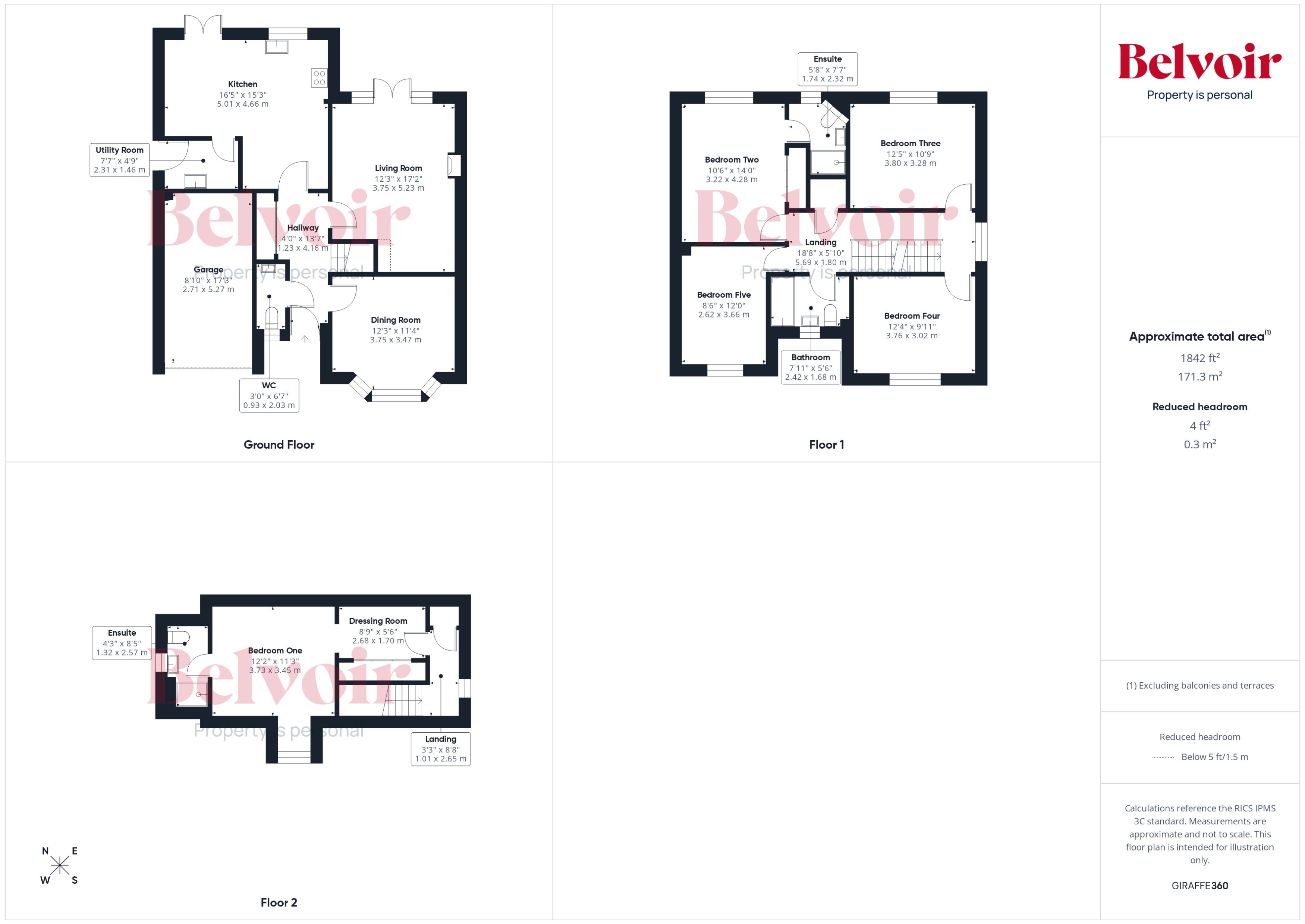
Situated within an exclusive gated development in Newport, Brook View is a beautifully presented five-bedroom detached family home offering spacious and versatile accommodation across three floors, ideal for modern family living.

Upon entering the property, you are welcomed into a central hallway with a built-in storage cupboard and convenient guest WC. To the front of the home, the elegant dining room enjoys a charming bay window, creating a bright and inviting space for entertaining. The generous living room is positioned to the rear and features double doors opening onto the garden, allowing for seamless indoor-outdoor living.

The impressive kitchen is fitted with stylish modern white cabinetry and a range of contemporary appliances, with ample space for informal dining. Double doors also lead directly to the rear garden, while the adjoining utility room provides additional practicality and side access to the property.

The first floor offers four well-proportioned double bedrooms. Bedroom two benefits from fitted wardrobes and a private en-suite shower room comprising a large shower cubicle, wash basin and WC. A well-appointed family bathroom with a modern white suite serves the remaining bedrooms.

Occupying the entire second floor, the superb principal suite provides a private retreat, featuring a spacious bedroom with dormer window, a dressing room with extensive fitted wardrobes, and an en-suite bathroom.

Externally, the rear garden is generous in size and thoughtfully arranged with multiple seating areas and a large lawn, perfect for families and outdoor entertaining. To the front, a substantial driveway provides parking for several vehicles and leads to the integral garage.

Ideally located close to local amenities, shops and well-regarded schools, Brook View combines privacy, space and convenience in a highly desirable setting.

 

Freehold / Council Tax Band F / EPC Rating TBC

  

AML Regulations: We are required by law to conduct anti-money laundering checks on all those buying a property, to comply with HMRC legislation and prevent criminal activity. These legally mandated checks are carried out by our partner Lifetime Legal, for which there is a nominal charge of £60 (including VAT), which you pay directly to them and covers the cost of obtaining relevant data and any manual checks and monitoring which might be required. This fee will need to be paid by you in advance, ahead of us issuing a memorandum of sale, directly to Lifetime Legal, and is non-refundable. EPC rating: Unknown. Council tax band: F, Tenure: Freehold,

Additional Information
Tenure:
Freehold
Council Tax Band:
F
Rooms
Hallway
4.16m x 1.23m (13'8" x 4'0")
WC
2.03m x 0.93m (6'8" x 3'1")
Dining Room
3.75m x 3.47m (12'4" x 11'5")
Living Room
5.23m x 3.75m (17'2" x 12'4")
Kitchen
5.01m x 4.66m (16'5" x 15'3")
Utility Room
2.31m x 1.46m (7'7" x 4'9")
First Floor Landing
5.69m x 1.8m (18'8" x 5'11")
Bedroom Two
4.28m x 3.22m (14'1" x 10'7")
Bedroom Two Ensuite
2.32m x 1.74m (7'7" x 5'9")
Bedroom Three
3.8m x 3.28m (12'6" x 10'9")
Bedroom Four
3.76m x 3.02m (12'4" x 9'11")
Bedroom Five
3.66m x 2.62m (12'0" x 8'7")
Bathroom
2.42m x 1.68m (7'11" x 5'6")
Second Floor Landing
2.62m x 1.01m (8'7" x 3'4")
Dressing Room
2.68m x 1.7m (8'10" x 5'7")
Bedroom One
3.73m x 3.45m (12'3" x 11'4")
Bedroom One Ensuite
2.57m x 1.32m (8'5" x 4'4")
Garage
5.27m x 2.71m (17'3" x 8'11")

Mortgage calculator

Calculate Your Stamp Duty
£
Results
Stamp Duty To Pay:
Effective Rate:
Tax Band % Taxable Sum Tax

Brook View, Newport, TF10

Struggling to find a property? Get in touch and we'll help you find your ideal property.

Interested in viewing this property?
Book a Viewing
Main menu