5 bedroom Detached house For Sale

Beechill Grove, Derriaghy, BT28

OIRO £250,000 | For Sale

5 Bedrooms
2 Bathrooms
1 Receptions
Share Property

Lisburn

5 Antrim Street, 
Lisburn, 
BT28 1AU, 
Property Description

No onward chain

Belvoir are pleased to present this spacious five-bedroom home to the market, offering excellent potential for buyers seeking a property they can put their own stamp on.

The property is set on a generous site within the popular Beechhill Development in Derriaghy, conveniently located for local shops and Derriaghy Train Station, with Lisburn and Belfast both within easy commuting distance.

Internally, the property benefits from double glazing and oil-fired central heating. The accommodation comprises a welcoming entrance hall, a spacious living room open plan to a dining area, a fitted kitchen with a range of units, and a separate utility room. There are five well-proportioned bedrooms, including a principal bedroom with ensuite, along with a shower room and an additional side entrance hall.

Externally, the property offers a front garden laid in lawn, as well as a generous, fully enclosed rear yard with patio area. There is ample driveway parking and a garage, ideal for storage.

 

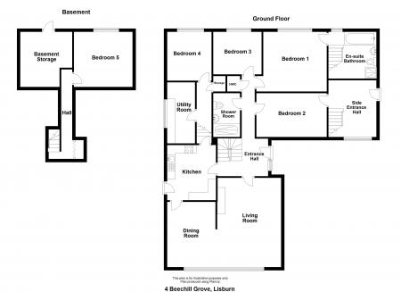
Accommodation

Reception Room
6.93m x 5.42m (22'8" x 17'9") (widest)
Feature fireplace with tiled hearth and wooden surround, open plan to dining area.

Kitchen
3.29m x 2.85m (10'9" x 9'4")
Range of high and low level units, integrated double oven and hob, extractor hood, part tiled walls, door to outside.

Utility Room
3.29m x 2.85m (10'9" x 9'4")
Low level units, plumbed for washing machine, vinyl flooring.

Bedroom 1
3.83m x 3.47m (12'6" x 11'4")
Single panel radiator.

Ensuite
2.70m x 2.66m (8'10" x 8'8")
White suite comprising panelled bath, low flush WC, pedestal wash hand basin, and shower cubicle.

Bedroom 2
4.12m x 2.85m (13'6" x 9'4")
Single panel radiator, recessed spotlights.

Bedroom 3
2.85m x 2.66m (9'4" x 8'8")
Carpeted.

Bedroom 4
2.90m x 2.46m (9'6" x 8'0")
Carpeted, single panel radiator.

Bedroom 5
3.53m x 3.29m (11'6" x 10'9")
Tiled floor, spotlights, single panel radiator.

Bathroom
2.66m x 1.52m (8'8" x 4'11")
White suite comprising walk-in shower, low flush WC, pedestal wash hand basin, and heated towel rail.

Side Entrance Hall
3.57m x 2.72m (11'8" x 8'11")
Hardwood door, single panel radiator.

Basement Storage Room
3.40m x 3.21m (11'2" x 10'6")

 

Outside

Ample driveway parking, enclosed front garden laid in lawn,  garages, and a large enclosed courtyard.

 

EPC
https://find-energy-certificate.service.gov.uk/energy-certificate/3300-0562-8102-0221-8602

 

We endeavour to make our sales particulars accurate and reliable; however, they do not constitute or form part of an offer or any contract and none is to be relied upon as statements of representation or fact. Any services, systems and appliances listed in this specification have not been tested by us and no guarantee as to their operating ability or efficiency is given. All measurements have been taken as a guide to prospective buyers only and are not precise. If you require clarification or further information on any points, please contact us, especially if you are travelling some distance to view. Fixtures and fittings other than those mentioned are to be agreed with the seller by separate negotiation.

  EPC rating: Unknown. Council tax band: X,


Mortgage calculator

Calculate Your Stamp Duty
£
Results
Stamp Duty To Pay:
Effective Rate:
Tax Band % Taxable Sum Tax

Beechill Grove, Derriaghy, BT28

Struggling to find a property? Get in touch and we'll help you find your ideal property.

Interested in viewing this property?
Book a Viewing
Main menu