4 bedroom Town house For Sale

Aneurin Bevan Drive, Church Village, Pontypridd, CF38

£299,950 | For Sale

4 Bedrooms
3 Bathrooms
1 Receptions
Share Property

Cardiff and Pontypridd

178 Whitchurch Road, 
South Glamorgan, 
Cardiff, 
CF14 3NB, 
Standout Features

Property Description

This well-presented four-bedroom, three-bathroom townhouse offers an exceptional standard of accommodation in a sought-after residential area. Arranged over multiple levels, the property combines spacious living with a functional design, making it suitable for both family life and those seeking flexible living arrangements. The generous main reception room with small balcony suitable for seating, provides a comfortable space for relaxation or entertaining, featuring ample natural light and a versatile layout to suit various furnishings. The property benefits from gas central heating, uPVC double glazing and delivering efficient warmth throughout the home.

 

The kitchen and bathroom facilities are designed to a good specification, supporting daily routines with practicality and style. With three bathrooms, this property readily accommodates the demands of a modern household, providing both convenience and privacy.

 

One of the notable features of the home is the enclosed private rear garden, offering a secure outdoor space for recreation, gardening, or quiet enjoyment. The presence of an integral garage provides secure parking and additional storage options. Further parking is available for residents and visitors alike.

 

Located within a quiet housing development, the property enjoys a peaceful setting yet remains highly accessible. Excellent road connections allow for swift commuting, with good access to the A470 and M4 corridor. This combination of tranquillity and connectivity makes the property ideal for those seeking a calm living environment without sacrificing convenience.

 

Proximity to local schools further enhances the property’s appeal, offering families straightforward options for education. The area is also well-served by nearby shops, eateries, and other amenities, meeting the everyday needs of residents within easy reach.

 

Local area:

The property is situated in Church Village, Pontypridd, an area known for its balance of residential calm and convenient amenities. The local community benefits from a variety of nearby shops, dining establishments, and essential services, ensuring residents enjoy a comfortable lifestyle close to home. The area boasts reputable schools, making it appealing for families. Commuters appreciate the straightforward road links, with the A470 and M4 corridors providing direct routes to surrounding towns and major destinations. The development itself is set within a quiet, established neighbourhood, providing a desirable setting for families and professionals seeking both connectivity and serenity. EPC rating: C. Council tax band: E, Domestic rates: £2701.53, Tenure: Freehold,

Additional Information
EPC Rating:
C
Tenure:
Freehold
Council Tax Band:
E
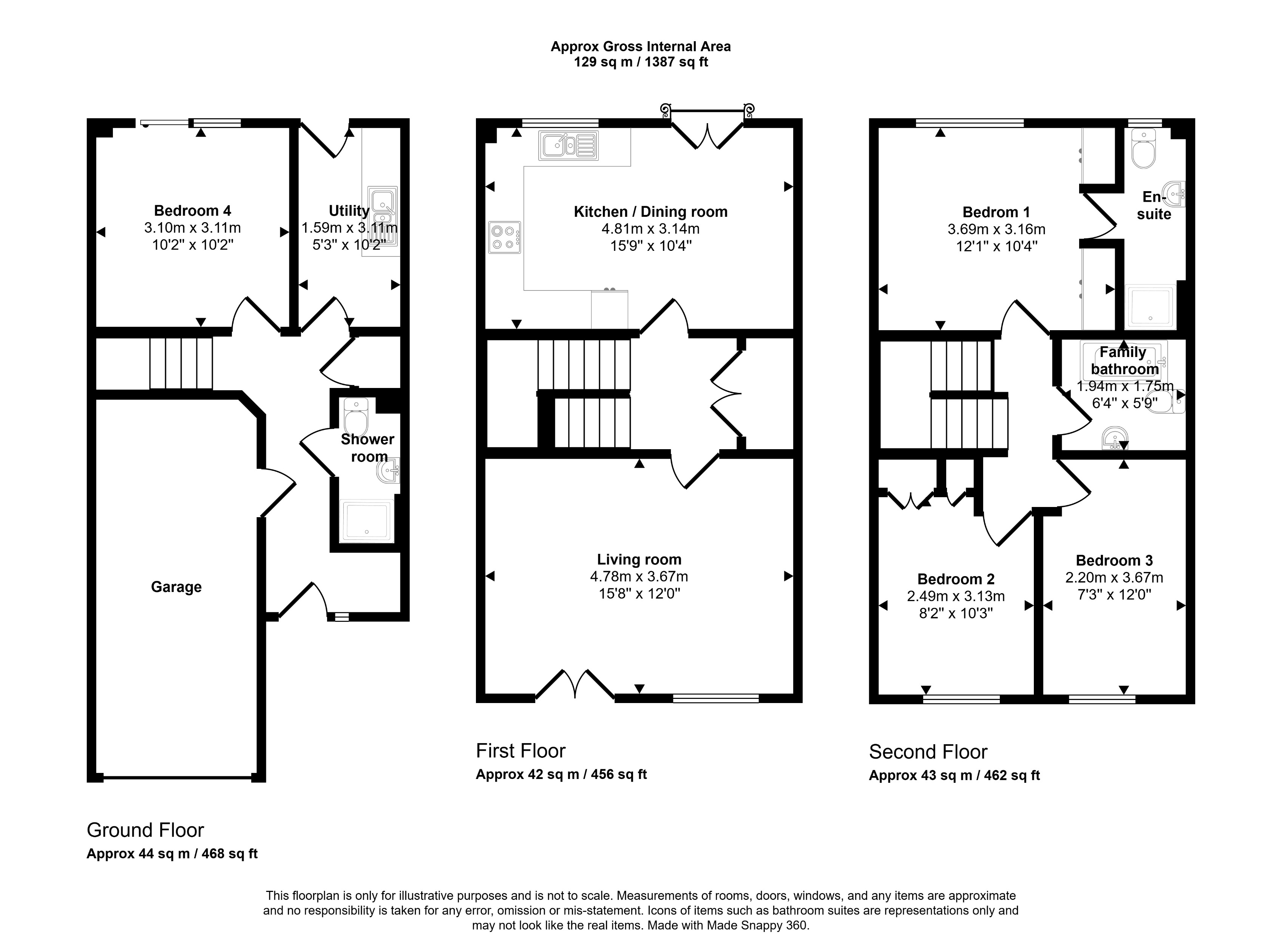
Rooms
Entrance Hall

Wood effect laminate flooring. Neutrally decorated walls. Painted woodwork with white painted ceiling. Wall mounted radiator. Internal access to integral garage. Storage cupboard housing the heating cylinder.

Shower Room

Wood effect laminate flooring. Neutrally decorated walls. Painted woodwork. White painted ceiling. Wall mounted radiator. Tiled shower cubicle. Toilet and sink with pedestal. Tiled splashback for the sink.

Utility
1.59m x 3.11m (5'3" x 10'2")

Wood effect laminate flooring. Neutrally decorated walls. White painted woodwork and ceiling. Wall mounted radiator. Tiled splashback above the worktop. Stainless steel sink and drainer. Wall mounted gas boiler. uPVC double glazing.

Bedroom Four
3.1m x 3.11m (10'2" x 10'2")

Wood effect vinyl flooring. White painted woodwork and ceiling. Painted walls. French doors leading to garden. uPVC double glazing.

Landing

Carpeted stairs and landing. Painted woodwork and walls. White painted ceiling. Double width storage cupboard. Wall mounted radiator.

Kitchen / Dining Area
4.81m x 3.14m (15'9" x 10'4")

Wood effect laminate flooring. French doors leading to Juliet balcony. Wall mounted radiator. uPVC double glazing. Painted woodwork and walls. White painted ceiling. Fitted kitchen with mix of base and wall unit. integrated fridge freezer. Integrated double oven and gas hob. Stainless steel cooker hood. Fitted worktop. Tiled splash back above worktop. Stainless steel sink and drainer.

Living Room
4.78m x 3.67m (15'8" x 12'0")

Neutral carpet. French doors leading to balcony seating area. Wall mounted radiator. uPVC double glazing. Painted woodwork and walls. White painted ceiling.

Landing two

Carpeted stairs and landing. Painted woodwork and walls. White painted ceiling. Double width storage cupboard. Wall mounted radiator.

Family Bathroom
1.94m x 1.75m (6'4" x 5'9")

Sink with vanity unit. Toilet and bath. Wall tiled halfway up. Remaining area is neutrally painted. White painted ceiling. Chrome towel radiator.

Bedroom One
3.69m x 3.16m (12'1" x 10'4")

Light coloured carpet. uPVC double glazing. Built in fitted wardrobes. Wall mounted radiator. White painted walls with feature wall. White painted woodwork and ceiling.

Ensuite

Wood effect laminate flooring. Neutrally decorated walls. White painted woodwork and ceiling. Wall mounted chrome radiator. Tiled shower cubicle. Toilet and sink with pedestal. Tiled splashback for the sink. uPVC double glazed window.

Bedroom Two
2.49m x 3.13m (8'2" x 10'3")

Light coloured carpet. uPVC double glazing. Built in fitted wardrobes. Wall mounted radiator. Yellow and white painted walls. White painted woodwork and ceiling.

Bedroom Three
2.2m x 3.67m (7'3" x 12'0")

Light coloured carpet. uPVC double glazing. Wall mounted radiator. White painted walls with feature wall. White painted woodwork and ceiling.

Disclaimer

We endeavour to make our sales particulars accurate and reliable, however, they do not constitute or form part of an offer or any contract and none is to be relied upon as statements of representation or fact. Any services, systems and appliances listed in this specification have not been tested by us and no guarantee as to their operating ability or efficiency is given. All measurements have been taken as a guide to prospective buyers only, and are not precise. If you require clarification or further information on any points, please contact us, especially if you are travelling some distance to view. Fixtures and fittings other than those mentioned are to be agreed with the seller by separate negotiation.


Mortgage calculator

Calculate Your Stamp Duty
£
Results
Stamp Duty To Pay:
Effective Rate:
Tax Band % Taxable Sum Tax

Aneurin Bevan Drive, Church Village, Pontypridd, CF38

Struggling to find a property? Get in touch and we'll help you find your ideal property.

Interested in viewing this property?
Book a Viewing
Main menu