4 bedroom Terraced House Sold STC

Habershon Street, Splott, Cardiff, CF24

£240,000 | Sold STC

4 Bedrooms
1 Bathrooms
1 Receptions
Share Property

Cardiff and Pontypridd

178 Whitchurch Road, 
South Glamorgan, 
Cardiff, 
CF14 3NB, 
Standout Features

Property Description

A very spacious four-bedroom end of terrace property located in the popular residential area of Splott, Cardiff.

This property offers an ideal opportunity for buyers looking too modernise and add value. With generous living accommodation and a large garden, the home has fantastic potential to become a beautiful family residence.  

Key Features:

Convenient location close to Cardiff city centre, local amenities, schools, and transport links

Set back from pavement with small front garden, brick wall and gate. 

Spacious layout offering excellent potential for reconfiguration.

Bare flooring or tiling throughout – ready for new finishes

Large reception room with bay window to the front

Four upstairs bedrooms

Upstairs family bathroom – requires complete upgrade

Large Kitchen – in need of modernisation

uPVC double-glazed windows. 

Large rear garden featuring patio and lawned area – Potential for a nice outdoor space

The property requires redecoration to most rooms.   

This property presents a fantastic renovation project for families, investors, or developers looking for a spacious home with great potential.

 

Important Note:

The property has recently undergone works to correct subsidence. The work performed is protected by a 10-year insurance-backed guarantee, offering peace of mind to prospective buyers.  EPC rating: D. Council tax band: D, Domestic rates: £1922, Tenure: Freehold,

Additional Information
EPC Rating:
D
Tenure:
Freehold
Council Tax Band:
D
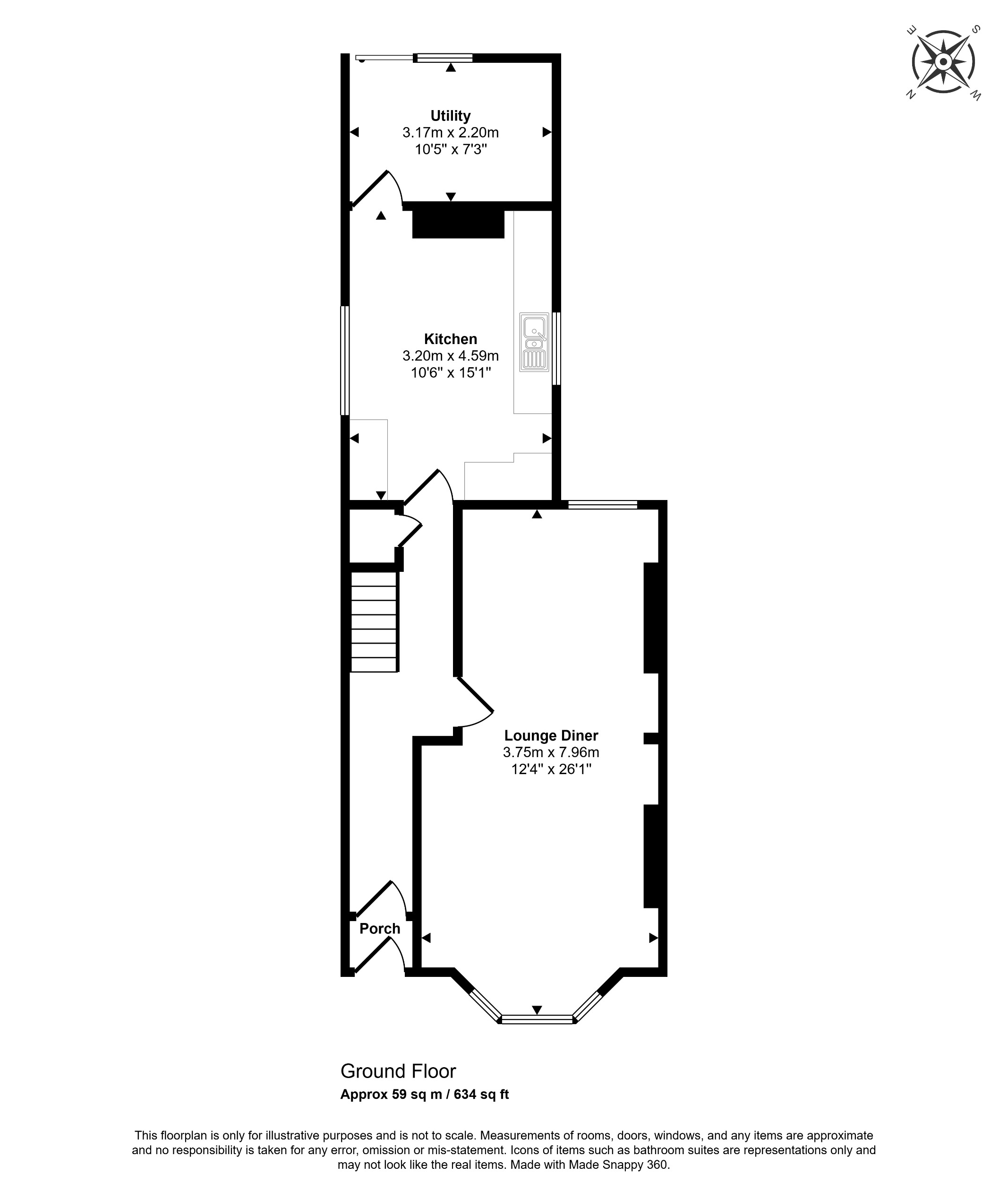
Rooms
Lounge / Diner
7.96m x 3.75m (26'1" x 12'4")

Very spacious and bright living room / diner with bay window to front and uPVC window to rear.

Kitchen
4.59m x 3.2m (15'1" x 10'6")

Large kitchen space with fitted units and tiled flooring. Windows to either side providing good natural light. Kitchen would benefit from upgrading

Dining / Utility
2.2m x 3.2m (7'3" x 10'6")

Additional room to rear of property providing the opportunity to customise the property to your needs. Patio door from this room lead directly onto the rear patio / garden. Options could include a downstairs bathroom, separate dining room, or a space to extend the current kitchen, providing a very well proportioned kitchen / diner with view over the rear garden.
This room has tiled flooring and houses the gas combi boiler.

Bedroom 1
4.59m x 3.46m (15'1" x 11'4")

Front aspect double bedroom with two uPVC windows providing good natural light. A good sized room currently with bare floorboards

Bedroom 2
3.58m x 3.17m (11'9" x 10'5")

Double bedroom with uPVC window to rear. Bare floorboards

Bathroom
2.26m x 2.23m (7'5" x 7'4")

Bathroom with uPVC window, sink, toilet and bath with over bath shower. The bathroom is dated and would benefit from complete renovation.

Bedroom 3
2.27m x 2.23m (7'5" x 7'4")

Single bedroom with uPVC window. Bare floorboards

Bedroom 4
3.22m x 2.18m (10'7" x 7'2")

Double bedroom with uPVC window overlooking the rear garden. Bare floorboards

Disclaimer

We endeavour to make our sales particulars accurate and reliable, however, they do not constitute or form part of an offer or any contract and none is to be relied upon as statements of representation or fact. Any services, systems and appliances listed in this specification have not been tested by us and no guarantee as to their operating ability or efficiency is given. All measurements have been taken as a guide to prospective buyers only, and are not precise. If you require clarification or further information on any points, please contact us, especially if you are travelling some distance to view. Fixtures and fittings other than those mentioned are to be agreed with the seller by separate negotiation.


Mortgage calculator

Calculate Your Stamp Duty
£
Results
Stamp Duty To Pay:
Effective Rate:
Tax Band % Taxable Sum Tax

Habershon Street, Splott, Cardiff, CF24

Struggling to find a property? Get in touch and we'll help you find your ideal property.

Interested in viewing this property?
Book a Viewing
Main menu