4 bedroom Detached house Sold STC

Stanley Road, Chapeltown, Sheffield, S35

Offers in excess of £450,000 | Sold STC

4 Bedrooms
2 Bathrooms
2 Receptions
Share Property

Sheffield

34 Campo Lane, 
Sheffield, 
S1 2EG, 
Standout Features

Property Description

Belvoir Sheffield are delighted to offer this immaculate four/five-bedroom detached home for sale in Chapeltown, with no onward chain. The property features a large open-plan living/dining area, driveway, two bathrooms, substantial garage, office/fifth bedroom, and a sheltered Jacuzzi area. Externally, a summer house offers potential for conversion into an annex, making it ideal for families, upsizers, first-time buyers, or multi-generational living.

This impressive family home opens with a welcoming porch leading into a bright entrance hallway, enhanced by a large window that floods the space with natural light. The hallway flows through to a fabulous, substantial reception room, featuring a stylish media wall, built-in fireplace and a striking LED lighting system. Patio doors open directly onto the rear garden, creating a seamless connection between indoor and outdoor living.

The contemporary kitchen is thoughtfully designed with an excellent range of wall and base units and benefits from a bay window. Integrated appliances included within the sale comprise a fridge, freezer, dishwasher, double oven and microwave, ensuring a sleek and practical cooking space.

Completing the ground floor is a beautifully appointed utility room with PIR lighting, ample storage, WC and sink, along with space and plumbing for both a washing machine and dryer. A versatile office provides an ideal work-from-home solution and could alternatively be used as a fifth bedroom.

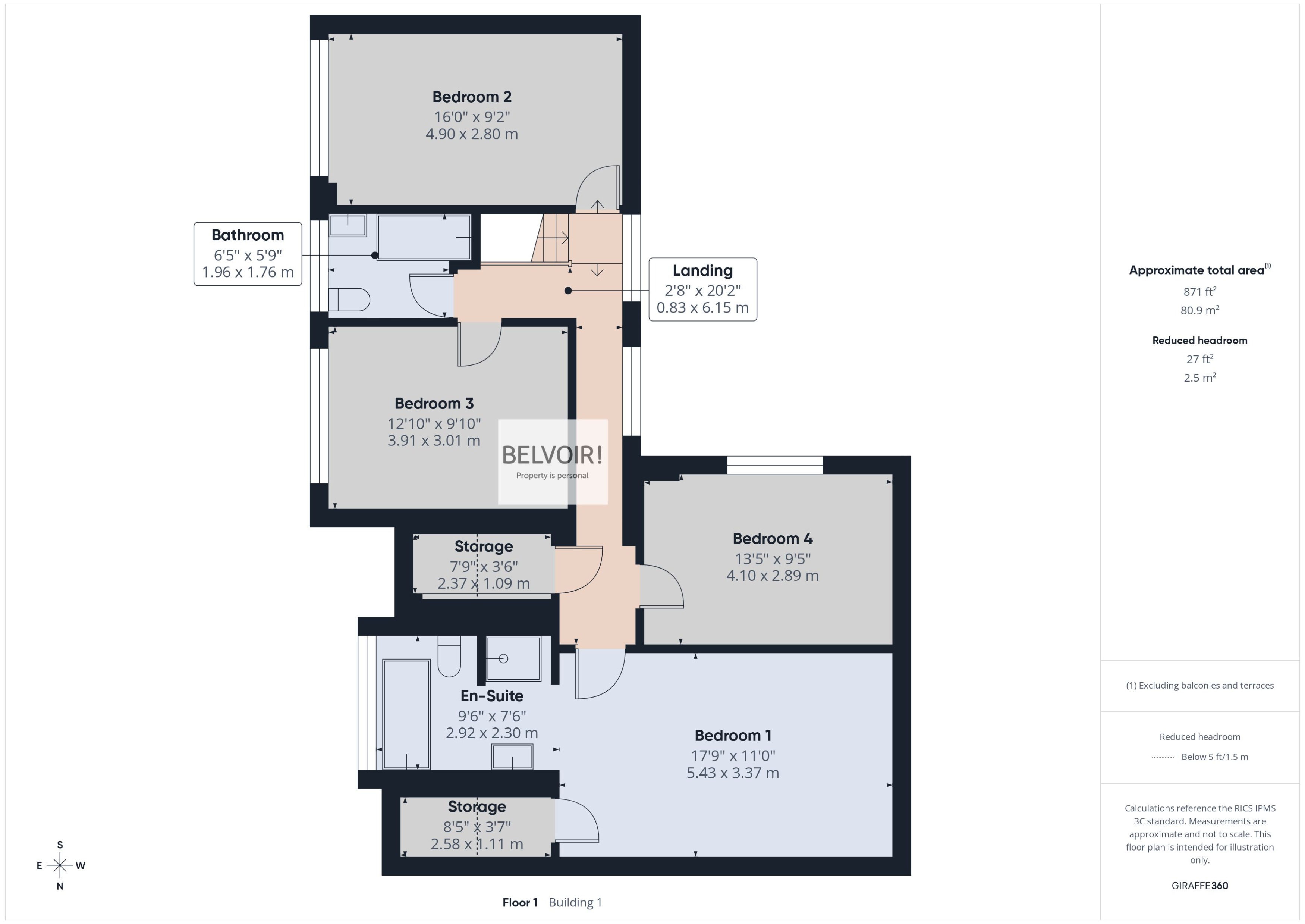
To the first floor, the spacious principal bedroom offers built-in wardrobes, a large storage cupboard and a superb ensuite bathroom featuring a freestanding bath, enclosed shower, WC and twin sinks. Three further generously sized double bedrooms all benefit from built-in wardrobes and excellent natural light. The modern family bathroom is fitted with a bath with shower over, WC and sink. The landing also provides a large storage cupboard with PIR lighting, while a sizeable loft offers further storage potential.

Externally, the property benefits from substantial garage space and a separate driveway to the front. To the rear, the garden is ideal for entertaining, featuring a low-maintenance patio area and a sheltered jacuzzi space. A large summer house with an installed shower offers exceptional flexibility and could be used as a home office, salon or potentially converted into a granny annexe, subject to requirements.

Situated close to Chapeltown centre, the property enjoys easy access to a range of shops, cafés and everyday amenities, as well as nearby parks offering excellent outdoor space. Chapeltown railway station provides direct links to Sheffield in approximately 15 minutes and to Leeds in under an hour, while the M1 is easily accessible for regional commuting. The area is well served by reputable schools, making this an ideal home for families and multi-generational living. EPC rating: C. Council tax band: E, Tenure: Freehold,

Additional Information
EPC Rating:
C
Tenure:
Freehold
Council Tax Band:
E
Rooms
Disclaimers and Advice

We endeavour to make our sales particulars accurate and reliable, however, they do not constitute or form part of an offer or any contract and none is to be relied upon as statements of representation or fact. Any services, including but not limited to heating, plumbing or electrical systems and any appliances (if included in the sale) listed in this specification have not been tested by us and no guarantee as to their operating ability or efficiency is given. All measurements have been taken as a guide to prospective buyers only, and are not precise. If you require clarification or further information on any points, please contact us, especially if you are travelling some distance to view. Fixtures and fittings other than those mentioned are to be agreed with the seller by separate negotiation. If you already have or are considering purchasing a property to let, please contact us for specialist advice.


Mortgage calculator

Calculate Your Stamp Duty
£
Results
Stamp Duty To Pay:
Effective Rate:
Tax Band % Taxable Sum Tax

Stanley Road, Chapeltown, Sheffield, S35

Struggling to find a property? Get in touch and we'll help you find your ideal property.

Interested in viewing this property?
Book a Viewing
Main menu