4 bedroom Detached house Sold STC

Olympia Reach, Beeston, Beeston, NG9

£499,995 | Sold STC

4 Bedrooms
2 Bathrooms
2 Receptions
Share Property

Long Eaton and Beeston

31 Tamworth Road, 
Long Eaton, 
NG10 1JF, 
Standout Features

Property Description

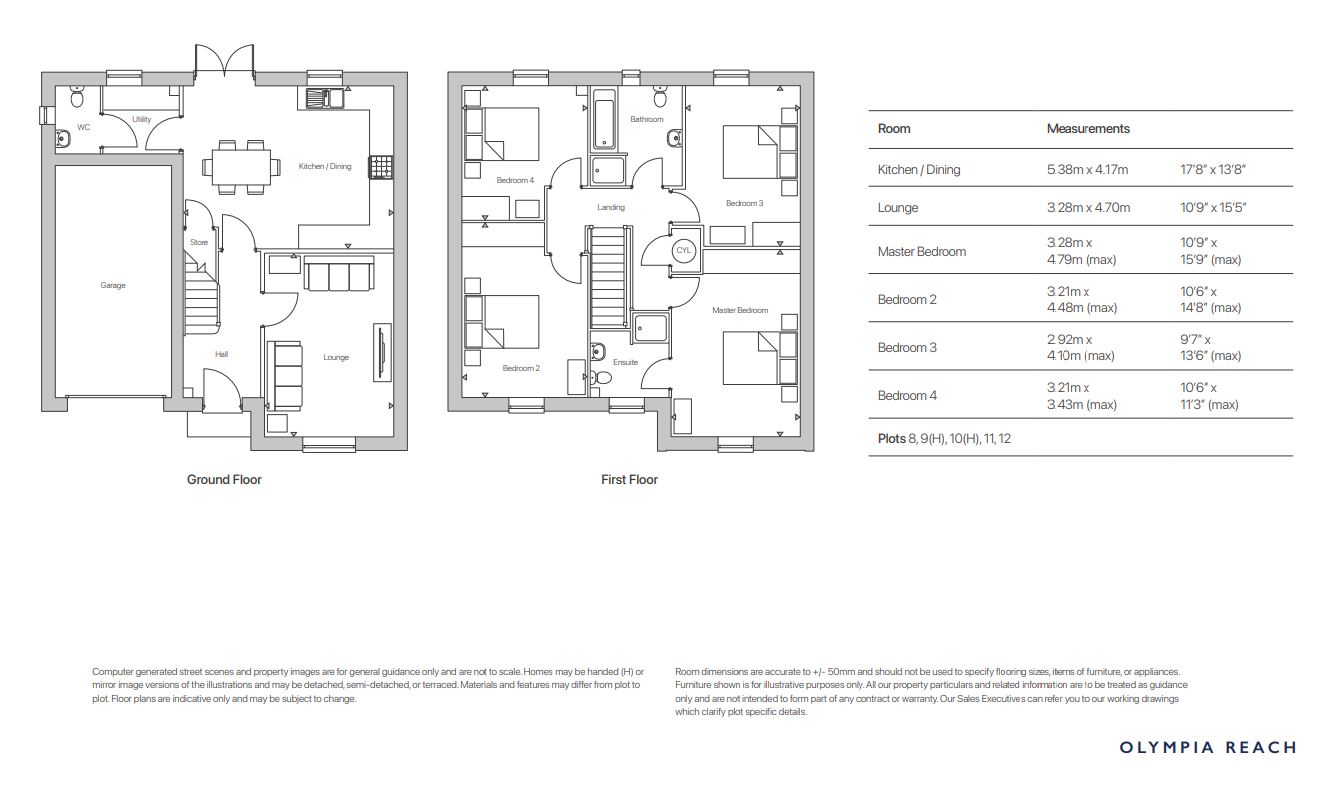
Belvoir is delighted to bring to market this four-bedroom detached home which features a spacious open-plan kitchen and dining room, a useful utility area, and a WC. Downstairs, you can also find a separate front-facing lounge and integral garage. On the first floor, there is the master bedroom with ensuite, three further double bedrooms, and family bathroom.Olympia Reach is an exclusive development offering a collection of two-bed bungalows and three, four, and five-bedroom new homes in Nottinghamshire. 

These stunning new build homes in Chilwell have been designed to embody beauty, comfort, and exceptional quality. With a deep commitment to craftsmanship, we have carefully curated every aspect of these homes to ensure a harmonious blend of aesthetics and functionality. From the architectural details to the interior finishes, we have created a living space that exceeds your expectations.

Chilwell benefits from its close proximity to both the countryside and the city of Nottingham. The area is surrounded by beautiful green spaces, such as Attenborough Nature Reserve and Chilwell Meadows, providing residents with opportunities for outdoor activities, nature walks, and relaxation.

Our new build homes in Chilwell have been constructed with rising energy prices in mind. Our new home energy efficiency means you can make significant savings on your annual energy bill and still enjoy the advantages of a warm and cosy home.

EPC to be confirmed as it is a new build.

Council Tax to be confirmed as it is a new build.

Disclaimer

These particulars are issued in good faith but do not constitute representations of fact or form part of any offer or contract. The matters referred to in these particulars should be independently verified by prospective buyers or tenants. Neither Belvoir nor any of its employees or agents has any authority to make or give any representation or warranty whatever in relation to this property.

We endeavour to make our sales particulars accurate and reliable, however, they do not constitute or form part of an offer or any contract and none is to be relied upon as statements of representation or fact. Any services, systems and appliances listed in this specification have not been tested by us and no guarantee as to their operating ability or efficiency is given. All measurements have been taken as a guide to prospective buyers only, and are not precise. If you require clarification or further information on any points, please contact us, especially if you are travelling some distance to view. Fixtures and fittings other than those mentioned are to be agreed with the seller by separate negotiation. EPC rating: Unknown. Council tax band: X, Tenure: Freehold,

Additional Information
Tenure:
Freehold

Mortgage calculator

Calculate Your Stamp Duty
£
Results
Stamp Duty To Pay:
Effective Rate:
Tax Band % Taxable Sum Tax

Olympia Reach, Beeston, Beeston, NG9

Struggling to find a property? Get in touch and we'll help you find your ideal property.

Interested in viewing this property?
Book a Viewing
Main menu