The Collection

3 bedroom Town house For Sale

Abbey Road, West Bridgford, NG2

From £599,995 | For Sale

3 Bedrooms
2 Bathrooms
1 Receptions
Share Property

West Bridgford

122 Melton Road, 
NG2 6EP, 
Standout Features

Property Description

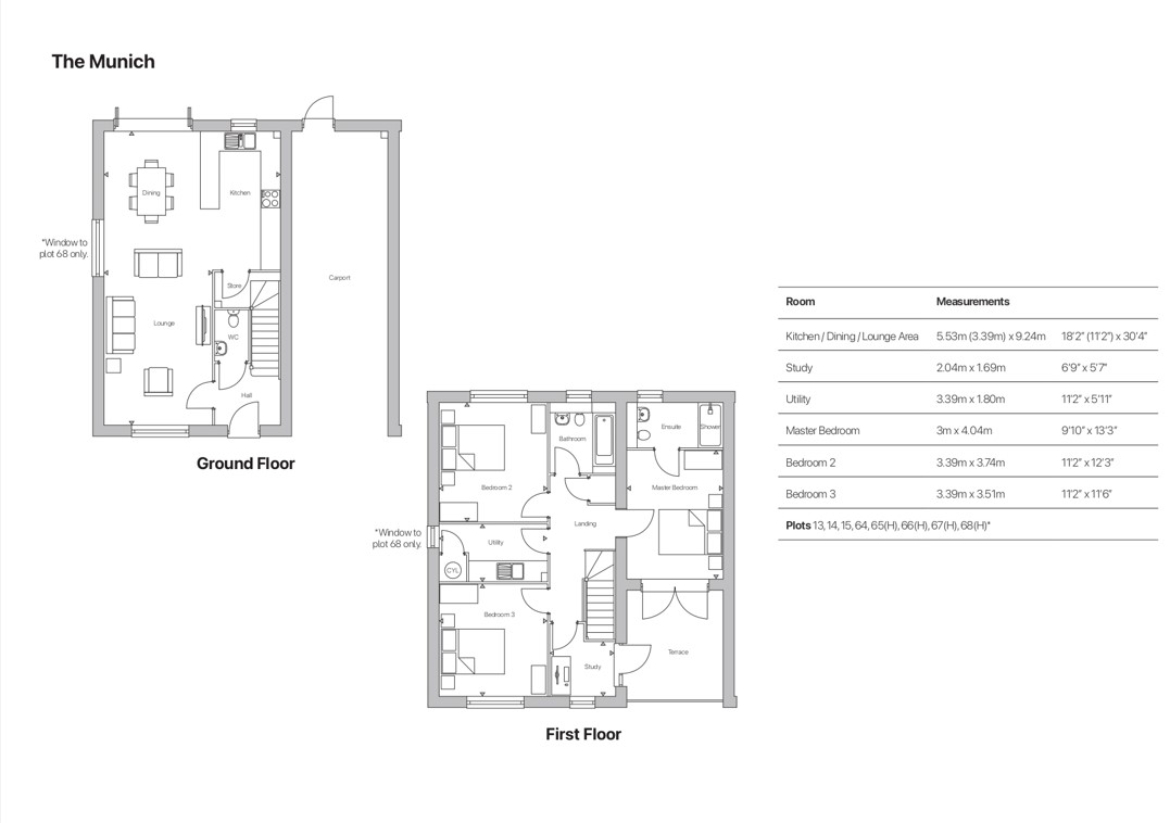
"The Munich"

Immerse yourself in the modern elegance of The Munich, a thoughtfully designed three-bedroom, two-storey home.

The ground floor invites you into a stylish residence featuring a convenient WC, an open-plan kitchen, dining, and lounge area. This property also offers the convenience of a private carport.

Upstairs, the master bedroom awaits with its ensuite, offering a private sanctuary. Two additional bedrooms, a dedicated study, a utility room, and a charming terrace complete the second floor.

 Welcome to Abbey Central, West Bridgford

Our marketing hub is open Thursday-Monday, 11am-5pm

Peveril Homes are delighted to present an exclusive collection of 71 eco-friendly homes, in partnership with The Stagfield Group.

Abbey Central offers a harmonious blend of modern design and ecological consciousness in the charming town of West Bridgford in Nottinghamshire.

Abbey Central is an innovative residential development with a range of two to four-bedroom stunning new homes that are fit for the future. Its prime location ensures that everything you need is just a stone's throw away, while still providing a peaceful retreat amidst a humming community EPC rating: B. Council tax band: X,

Additional Information
EPC Rating:
B

Mortgage calculator

Calculate Your Stamp Duty
£
Results
Stamp Duty To Pay:
Effective Rate:
Tax Band % Taxable Sum Tax

Abbey Road, West Bridgford, NG2

Struggling to find a property? Get in touch and we'll help you find your ideal property.

Interested in viewing this property?
Book a Viewing
Main menu