3 bedroom Terraced House Sold STC

Richmond Road, Crewe, CW1

Offers in excess of £140,000 | Sold STC

3 Bedrooms
1 Bathrooms
2 Receptions
Share Property

Crewe and Nantwich

221 Nantwich Road, 
Crewe, 
CW2 6DA, 
Property Description

Situated within a popular residential area of Crewe, this attractive bay-fronted mid-terrace property offers spacious accommodation with excellent potential for further enhancement. Ideally located close to Grand Junction Retail Park, the property benefits from convenient access to a wide range of amenities, while Crewe train station is approximately a 20-minute walk away, making it well-suited for commuters.

Externally, the property features a front courtyard setting the home back from the road. Upon entering, a welcoming hallway provides access to both the front and middle reception rooms, as well as stairs leading to the first floor. The front reception room is particularly bright and airy, boasting a large bay window, while the additional reception space offers flexibility for dining or additional living room.

To the rear, the property benefits from a modern fitted kitchen, complete with useful under-stairs storage and a door leading out to the enclosed rear yard. The yard also provides access to a garage, ideal for storage.

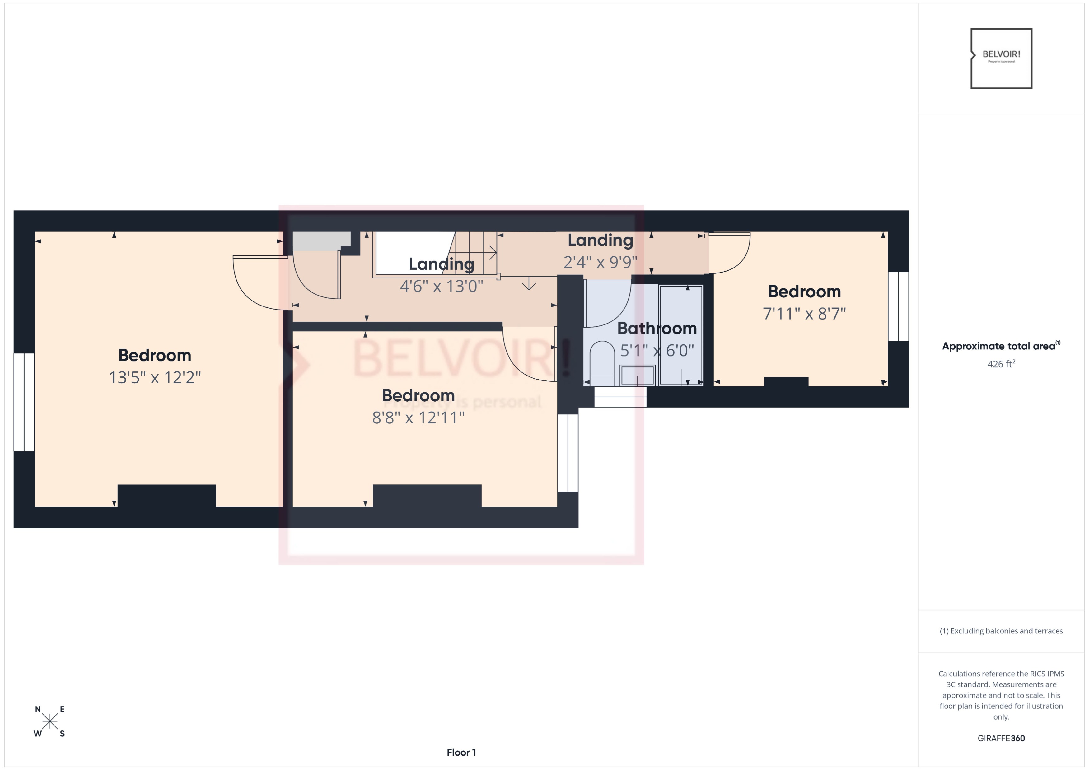
Upstairs, there are three well-proportioned bedrooms, including two generous doubles and a good-sized single room. The accommodation is completed by a family bathroom fitted with a shower over the bath.

The property has undergone renovation in recent years, offering a solid foundation for prospective buyers, while still presenting an opportunity for further improvement to suit individual tastes. High ceilings and spacious rooms throughout enhance the sense of space and character.

This is an excellent opportunity to acquire a well-located home with plenty of potential in a sought-after area of Crewe. EPC rating: D. Council tax band: A, Tenure: Freehold,

Additional Information
EPC Rating:
D
Tenure:
Freehold
Council Tax Band:
A

Mortgage calculator

Calculate Your Stamp Duty
£
Results
Stamp Duty To Pay:
Effective Rate:
Tax Band % Taxable Sum Tax

Richmond Road, Crewe, CW1

Struggling to find a property? Get in touch and we'll help you find your ideal property.

Interested in viewing this property?
Book a Viewing
Main menu