3 bedroom Terraced House Sold STC

Burchell Avenue, Stone, ST15

Offers in excess of £229,950 | Sold STC

3 Bedrooms
2 Bathrooms
1 Receptions
Share Property

Stafford

33b Marsh Street, 
Stafford, 
ST16 3BQ, 
Standout Features

Property Description

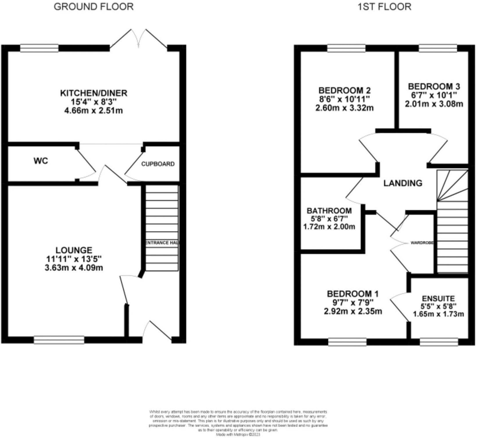
Belvoir Estate Agents are delighted to welcome to the sales market this modern three bedroom end of terraced family home located on a popular residential development within close proximity of Stone town centre and with ease of access to many local amenities, schools and commuting links. The accommodation is well maintained throughout and benefits from a lounge, downstairs WC, fitted kitrchen/diner with understairs storage cupboard, first floor family bathroom and three bedrooms the master of which has an ensuite shower room. To the rear there is a south facing private enclosed garden with driveway to the front providing off road parking. Call us now to arrange to view!

Accommodation: 

Entrance Hall: With stairs to the first floor 

Living Room: With uPVC double glazed window to the front 

Downstairs WC: With wash hand basin, WC, extractor fan 

Fitted Kitchen/Diner: With a range of base and wall units, worktops, one and a half stainless steel sink with mixer tap and drainer, space for freestanding appliances, space and plumbing for washing machine,  space for tall American fridge freezer, integrated oven with hob and extractor over, uPVC double glazed window to the rear and French doors opening onto the garden 

Landing: With loft access

Master Bedroom: With uPVC double glazed window to the front

Ensuite Shower Room: With shower cubicle, wash hand basin, WC, uPVC double glazed frosted window, towel radiator

Bedroom Two: With uPVC double glazed window to the rear 

Bedroom Three: With uPVC double glazed window to the rear 

Family Batroom: With bath and shower over, WC, wash hand basin, extractor fan

Externally: Private enclosed south facing rear garden with lawn, patio area ideal for dining and entertaining, water tap, gated access to the side, private driveway to the front providing off road parking 

EPC Asset Rating: B

Viewings: Please contact Belvoir Stone office or e-mail [email protected]

Tenure: We are advised that the tenure is Freehold. Any interested parties are advised to confirm the details with solicitors before proceeding.

Services: All mains services are connected in accordance with normal terms of supply, telephone subject to normal terms and conditions. The gas and electrical appliances mentioned have not been tested by us and purchasers are therefore advised to undertake their own tests should they consider this necessary. All interested parties should obtain verification through their solicitor or surveyor before entering a legal commitment to purchase.

 

 

 

  EPC rating: B. Council tax band: C, Tenure: Freehold, Planning permissions: not known Mobile signal information: usual providers

Additional Information
EPC Rating:
B
Tenure:
Freehold
Council Tax Band:
C

Mortgage calculator

Calculate Your Stamp Duty
£
Results
Stamp Duty To Pay:
Effective Rate:
Tax Band % Taxable Sum Tax

Burchell Avenue, Stone, ST15

Struggling to find a property? Get in touch and we'll help you find your ideal property.

Interested in viewing this property?
Book a Viewing
Main menu