3 bedroom Semi-detached house For Sale

Halliwick Road, London, N10

Offers in excess of £875,000 | For Sale

3 Bedrooms
1 Bathrooms
2 Receptions
Share Property

Hendon

258 Watford Way, 
Hendon, 
NW4 4UJ, 
Standout Features

Property Description

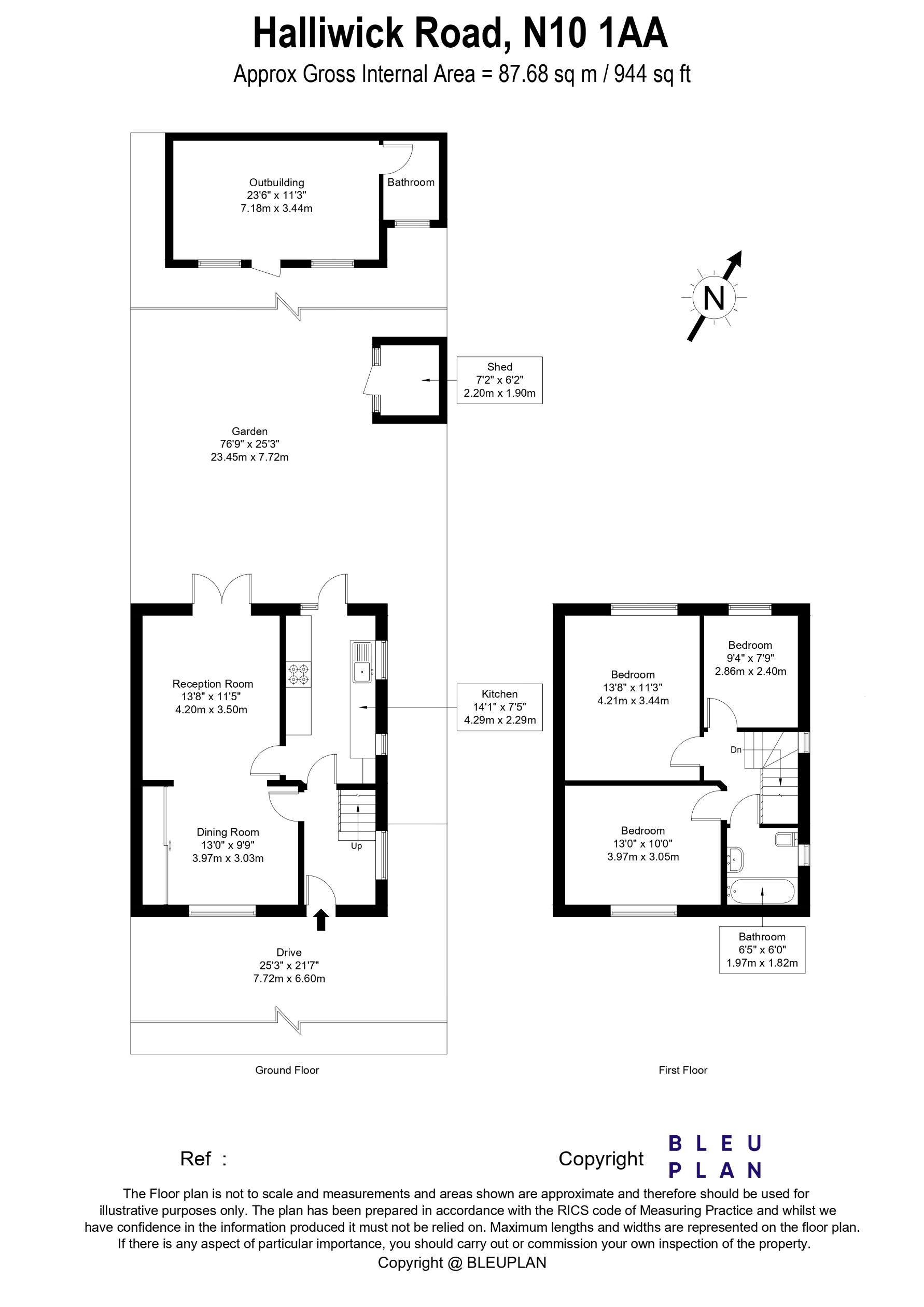
Halliwick Road, London, N10 1AA

A beautifully presented three?bedroom semi?detached family home, finished to a clean contemporary standard throughout, offering bright open?plan living space, extensive fitted storage, and a substantial self?contained outbuilding with shower room and WC, set within a generous and private rear garden.

The property is particularly notable for its full?height glazed internal doors, engineered wood flooring, and excellent natural light across both floors. The ground floor provides a spacious reception and dining area with a feature wall?mounted fireplace and a wide opening between spaces, creating a flexible layout ideal for modern family living and entertaining. French doors open directly onto the garden, enhancing the connection between indoor and outdoor space.

The separate modern galley kitchen includes stone work surfaces, fitted units, and direct access to the rear garden.

Upstairs, there are three well?proportioned bedrooms, including a generous principal bedroom with full?width mirrored fitted wardrobes, alongside a bright contemporary family bathroom. The upper floor also benefits from attractive ceiling lines which further enhance the sense of space and light.

Externally, the property offers a front garden with driveway parking and an impressive rear garden extending to a large detached self?contained outbuilding, complete with its own shower room and WC and separate external access. This versatile space is ideal for use as a home office, guest accommodation, studio, gym or creative workspace.AccommodationGround Floor

Reception Room
13'8" x 11'5" (4.20m x 3.50m)

Dining Room
13'0" x 9'9" (3.97m x 3.03m)

Kitchen
14'1" x 7'5" (4.29m x 2.29m)

First Floor

Bedroom One
13'8" x 11'3" (4.21m x 3.44m)

Bedroom Two
13'0" x 10'0" (3.97m x 3.05m)

Bedroom Three
9'4" x 7'9" (2.86m x 2.40m)

Bathroom
6'5" x 6'0" (1.97m x 1.82m)

External

Detached Self?Contained Outbuilding
23'6" x 11'3" (7.18m x 3.44m)
(Including shower room & WC)

Additional Shed
7'2" x 6'2" (2.20m x 1.90m)

Driveway
25'3" x 21'7" (7.72m x 6.60m)

Approximate Gross Internal Area
944 sq ft / 87.68 sq m
(Main house – excluding outbuilding)Key Features• Three?bedroom semi?detached house
• Contemporary finish throughout
• Glass internal doors
• Spacious reception and dining areas
• Feature wall?mounted fireplace
• Modern fitted kitchen with stone worktops
• Engineered wood flooring
• Mirrored fitted wardrobes
• Generous front and rear gardens
• Large self?contained outbuilding with shower room & WC
• Separate access to outbuilding
• Driveway parkingLocationHalliwick Road is a desirable residential road in Muswell Hill, well known for its family?friendly setting, strong local community and access to excellent amenities. The property is conveniently positioned for Muswell Hill Broadway, which offers a wide range of cafés, restaurants, independent shops and everyday conveniences.

The area is also well served by green open spaces, with Alexandra Park, Highgate Woods and Queens Wood all within easy reach, while Alexandra Palace offers leisure facilities, events and far?reaching views across London. Transport links are readily available via Bounds Green Underground Station and Alexandra Palace mainline station, together with a number of local bus routes connecting the area to surrounding parts of North London. EPC rating: D. Council tax band: E, Domestic rates: £2607, Tenure: Freehold,

Additional Information
EPC Rating:
D
Tenure:
Freehold
Council Tax Band:
E

Mortgage calculator

Calculate Your Stamp Duty
£
Results
Stamp Duty To Pay:
Effective Rate:
Tax Band % Taxable Sum Tax

Halliwick Road, London, N10

Struggling to find a property? Get in touch and we'll help you find your ideal property.

Interested in viewing this property?
Book a Viewing
Main menu