3 bedroom Semi-detached house Sold STC

Field Farm, Stapleford, Stapleford, NG9

£274,995 | Sold STC

3 Bedrooms
1 Bathrooms
1 Receptions
Share Property

Long Eaton and Beeston

31 Tamworth Road, 
Long Eaton, 
NG10 1JF, 
Standout Features

Property Description

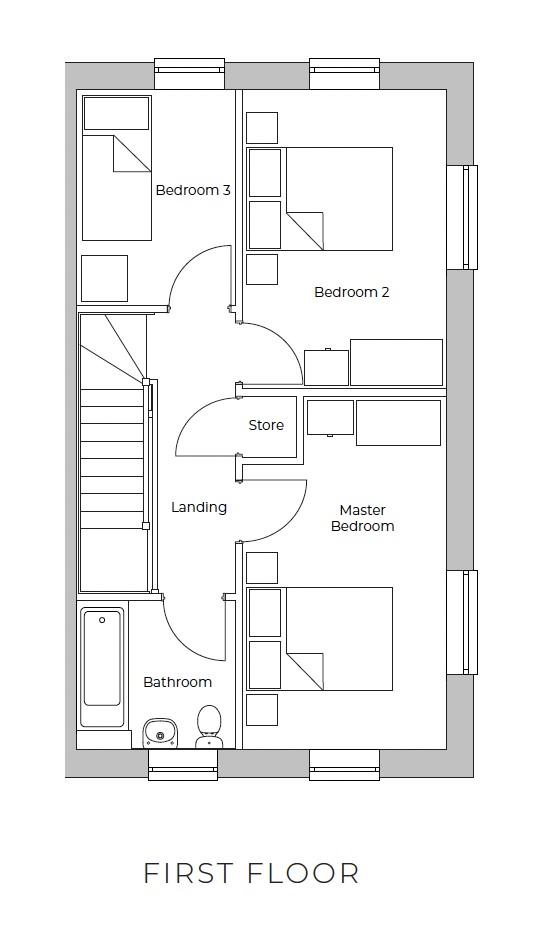
The Coton is a spacious 3-bedroom family home. The ground floor hallway leads to a front facing kitchen and open plan lounge and dining area with patio door to the rear garden.

The first floor provides three good sized bedrooms and family bathroom.

EPC to be confirmed as it is a new build.

Council Tax to be confirmed as it is a new build.

Disclaimer

These particulars are issued in good faith but do not constitute representations of fact or form part of any offer or contract. The matters referred to in these particulars should be independently verified by prospective buyers or tenants. Neither Belvoir nor any of its employees or agents has any authority to make or give any representation or warranty whatever in relation to this property.

We endeavour to make our sales particulars accurate and reliable, however, they do not constitute or form part of an offer or any contract and none is to be relied upon as statements of representation or fact. Any services, systems and appliances listed in this specification have not been tested by us and no guarantee as to their operating ability or efficiency is given. All measurements have been taken as a guide to prospective buyers only, and are not precise. If you require clarification or further information on any points, please contact us, especially if you are travelling some distance to view. Fixtures and fittings other than those mentioned are to be agreed with the seller by separate negotiation. EPC rating: Unknown. Council tax band: X, Tenure: Freehold,

Additional Information
Tenure:
Freehold

Mortgage calculator

Calculate Your Stamp Duty
£
Results
Stamp Duty To Pay:
Effective Rate:
Tax Band % Taxable Sum Tax

Field Farm, Stapleford, Stapleford, NG9

Struggling to find a property? Get in touch and we'll help you find your ideal property.

Interested in viewing this property?
Book a Viewing
Main menu