3 bedroom End of terrace house For Sale

Dynever Terrace, Nelson, Caerphilly, CF46

Guide Price £120,000 | For Sale

3 Bedrooms
1 Bathrooms
1 Receptions
Share Property

Cardiff and Pontypridd

178 Whitchurch Road, 
South Glamorgan, 
Cardiff, 
CF14 3NB, 
Standout Features

Property Description

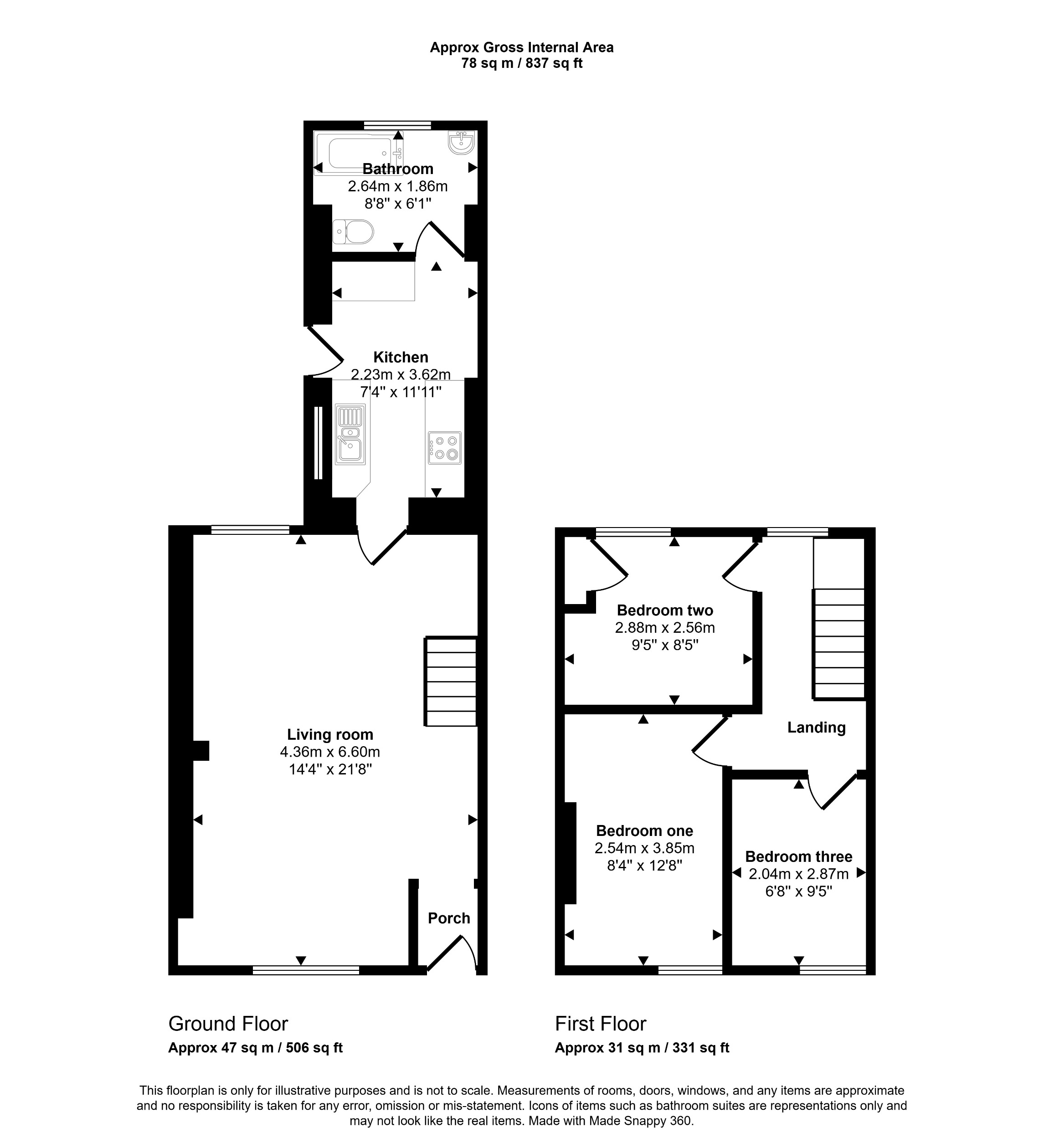
This three-bedroom end of terrace house is offered at a guide price of £125,000 in Nelson, Treharris, and requires some renovation, providing an opportunity for buyers to update and improve to their own specification. The property benefits from gas central heating and uPVC double glazing, with modern presentation throughout, though some damp to the pine end will need attention. It is being sold via modern auction.

Accommodation comprises one reception room with large windows and wood floors, a kitchen with natural light, three bedrooms (master, one double and one single) and a bathroom with over bath shower and heated towel rail. Outside, there is a garden and useful outbuilding, with on-street parking available. The property has an EPC rating of E and falls within Council Tax Band A.

Located in a sought-after area of Nelson, the house is convenient for local amenities including village shops, cafés and everyday services. There are nearby schools and local parks, along with walking routes in the surrounding countryside.

Nelson offers good access to the A470, providing road links to Merthyr Tydfil and Cardiff. Rail services are available from Ystrad Mynach and Pengam stations, both a short drive away, with direct trains to Cardiff typically taking around 30–40 minutes. Regular bus routes also serve the wider Valleys and city destinations.

This property may appeal to first-time buyers, families or investors seeking a home to refurbish in a well-connected village setting.

Don't miss out on this fantastic opportunity to own a well-located, modern home in a vibrant area. Contact us today to arrange a viewing!

 

 

Auction Details

Pattinson Auction are working in Partnership with the marketing agent on this online auction sale and are referred to below as 'The Auctioneer'. This auction lot is being sold either under conditional (Modern) or unconditional (Traditional) auction terms and overseen by the auctioneer in partnership with the marketing agent. The property is available to be viewed strictly by appointment only via the Marketing Agent or The Auctioneer.

Bids can be made via the Marketing Agents or via The Auctioneers website. Please be aware that any enquiry, bid or viewing of the subject property will require your details being shared between both any marketing agent and The Auctioneer in order that all matters can be dealt with effectively. The property is being sold via a transparent online auction. In order to submit a bid upon any property being marketed by The Auctioneer, all bidders/buyers will be required to adhere to a verification of identity process in accordance with Anti Money Laundering procedures.

Bids can be submitted at any time and from anywhere. Our verification process is in place to ensure that AML procedure are carried out in accordance with the law. The advertised price is commonly referred to as a ‘Starting Bid’ or ‘Guide Price’ and is accompanied by a ‘Reserve Price’. The ‘Reserve Price’ is confidential to the seller and the auctioneer and will typically be within a range above or below 10% of the ‘Guide Price’ / ‘Starting Bid’. These prices are subject to change. An auction can be closed at any time with the auctioneer permitting for the property (the lot) to be sold prior to the end of the auction.

A Legal Pack associated with this particular property is available to view upon request and contains details relevant to the legal documentation enabling all interested parties to make an informed decision prior to bidding. The Legal Pack will also outline the buyers’ obligations and sellers’ commitments. It is strongly advised that you seek the counsel of a solicitor prior to proceeding with any property and/or Land Title purchase. Auctioneers Additional Comments In order to secure the property and ensure commitment from the seller, upon exchange of contracts the successful bidder will be expected to pay a non-refundable deposit equivalent to 5% of the purchase price of the property.

The deposit will be a contribution to the purchase price. A non-refundable reservation fee of up to 6% inc VAT (subject to a minimum of 7,200 inc VAT) is also required to be paid upon agreement of sale. The Reservation Fee is in addition to the agreed purchase price and consideration should be made by the purchaser in relation to any Stamp Duty Land Tax liability associated with overall purchase costs. Both the Marketing Agent and The Auctioneer may believe necessary or beneficial to the customer to pass their details to third party service suppliers, from which a referral fee may be obtained. There is no requirement or indeed obligation to use these recommended suppliers or services. EPC rating: E. Council tax band: A, Domestic rates: £1304, Tenure: Freehold,

Additional Information
EPC Rating:
E
Tenure:
Freehold
Council Tax Band:
A
Rooms
Disclaimer

We endeavour to make our sales particulars accurate and reliable, however, they do not constitute or form part of an offer or any contract and none is to be relied upon as statements of representation or fact. Any services, systems and appliances listed in this specification have not been tested by us and no guarantee as to their operating ability or efficiency is given. All measurements have been taken as a guide to prospective buyers only, and are not precise. If you require clarification or further information on any points, please contact us, especially if you are travelling some distance to view. Fixtures and fittings other than those mentioned are to be agreed with the seller by separate negotiation.


Mortgage calculator

Calculate Your Stamp Duty
£
Results
Stamp Duty To Pay:
Effective Rate:
Tax Band % Taxable Sum Tax

Dynever Terrace, Nelson, Caerphilly, CF46

Struggling to find a property? Get in touch and we'll help you find your ideal property.

Interested in viewing this property?
Book a Viewing
Main menu