3 bedroom Detached house Sold STC

Radcliffe Road, Bishops Tachbrook, Leamington Spa

Guide Price £425,000 | Sold STC

3 Bedrooms
2 Bathrooms
1 Receptions
Share Property

Leamington Spa

22 Denby Buildings Regent Grove, 
Leamington Spa, 
CV32 4NY, 
Property Description


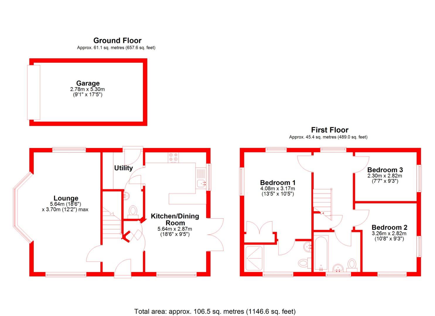
Ground Floor:
Step into the spacious lounge, bathed in natural light from the triple aspect windows, which include a striking bay window, creating an inviting space for family gatherings or quiet relaxation. The combined kitchen diner, adorned with French doors leading to the garden, is a culinary haven, ideal for both cooking enthusiasts and those who love to entertain. A convenient WC and a utility room complete this level, providing practical amenities for modern family living.

Upper Floor:
Ascend the staircase to discover the generously sized family bedroom, complete with its own ensuite bathroom featuring a refreshing shower. Two additional well-appointed bedrooms offer versatility for guests, family members, or a dedicated home office. A spacious family bathroom with a soothing bath completes this floor, offering a tranquil retreat after a long day.

Outdoor Oasis:
Situated on a corner plot, this property boasts a rare advantage. A garage provides secure parking and storage, while the large garden beckons with two separate patio areas, ideal for al fresco dining or lounging in the sun. The verdant lawn is a perfect playground for children and pets, offering ample space for outdoor activities.

Experience the essence of Leamington Spa living in this exceptional residence and schedule a viewing today.

Fixtures and Fittings - Only those mentioned within these particulars are included in the sale.
Information - Mains water and electricity are believed to be connected to the property. We believe the property to be freehold. The agent has not checked the legal status to verify the freehold status of the property. The purchaser is advised to obtain verification from their legal advisers. Fixtures & Fittings Only those mentioned within these particulars are included in the sale price. Viewing Strictly by appointment through the Agents. All electrical appliances mentioned within these sales particulars have not been tested. All measurements believed to be accurate to within three inches. Photographs are reproduced for general information only and it must not be inferred that any item is included for sale with the property.
Viewings - Strictly by appointment through the Agents only.
Belvoir and our partners provide a range of services to buyers, although you are free to use an alternative provider. For more information simply speak to someone in our branch today. We can refer you to Furnley House for help with finance. We may receive a 20% fee , if you take out a mortgage through them. If you require a solicitor to handle your purchase we can refer you to Thomas Flavell + Sons solicitors. or Davisons Law, we may receive a fee of £150, if you use their services.

Additional Information
EPC Rating:
B
Rooms
Ground Floor:
Step into the spacious lounge, bathed in natural light from the triple aspect windows, which include a striking bay window, creating an inviting space for family gatherings or quiet relaxation. The combined kitchen diner, adorned with French doors leading to the garden, is a culinary haven, ideal for both cooking enthusiasts and those who love to entertain. A convenient WC and a utility room complete this level, providing practical amenities for modern family living.

Upper Floor:
Ascend the staircase to discover the generously sized family bedroom, complete with its own ensuite bathroom featuring a refreshing shower. Two additional well-appointed bedrooms offer versatility for guests, family members, or a dedicated home office. A spacious family bathroom with a soothing bath completes this floor, offering a tranquil retreat after a long day.

Outdoor Oasis:
Situated on a corner plot, this property boasts a rare advantage. A garage provides...

Mortgage calculator

Calculate Your Stamp Duty
£
Results
Stamp Duty To Pay:
Effective Rate:
Tax Band % Taxable Sum Tax

Radcliffe Road, Bishops Tachbrook, Leamington Spa

Struggling to find a property? Get in touch and we'll help you find your ideal property.

Interested in viewing this property?
Book a Viewing
Main menu