3 bedroom Bungalow For Sale

Pinkneys Road, Maidenhead, SL6

£800,000 | For Sale

3 Bedrooms
2 Bathrooms
3 Receptions
Share Property

Maidenhead

75 Queen Street, 
Maidenhead, 
SL6 1LT, 
Standout Features

Property Description

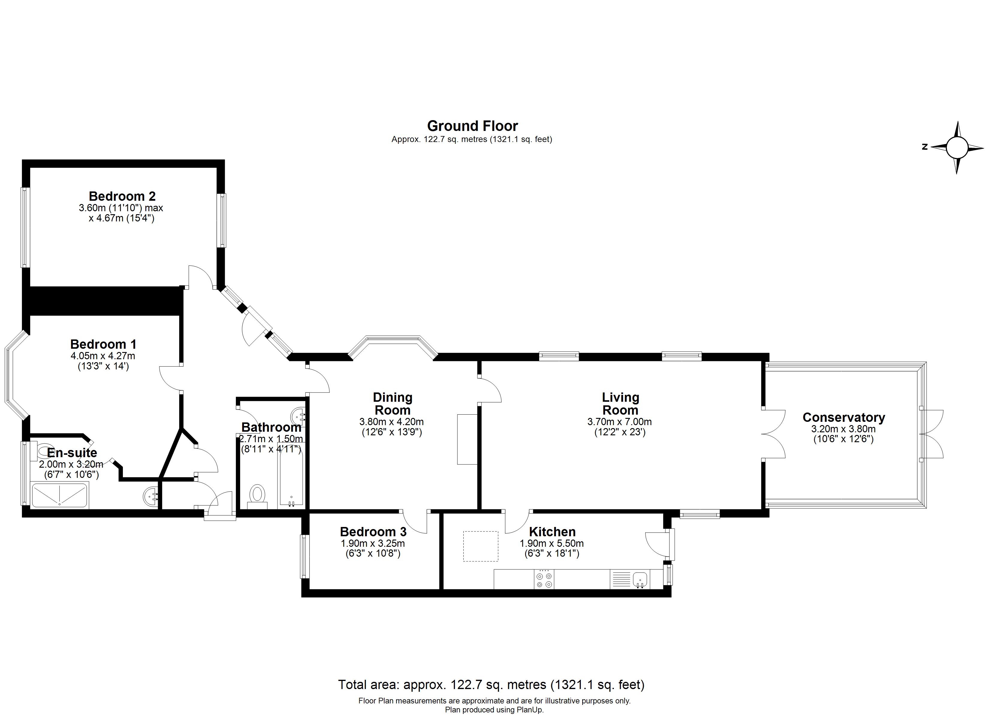
Exclusive to Belvoir Sales & Lettings. A beautiful well maintained three bedroom bungalow located close to Newlands Girl School and being a ten minute drive to the town centre, M4 and train station with direct links to Central London. Best of both worlds, there is plenty of countryside and great walking spots nearby, making this a very sought after location indeed. Viewing highly recommended to appreciate the feel and potential of this special home.

The well maintained bungalow features a dinning room with large fireplace, open and airy living room leading onto the conservatory with views of the large semi wrap around garden. Further benefits are three bedrooms one with en-suite shower, family sized bathroom hallway and recently installed fully functioning  kitchen.

Outside there is a driveway for three cars, large mature sunny garden, patio perfect for entertaining and two out buildings.

The property is being sold with no chain EPC rating: D. Council tax band: E, Tenure: Freehold,

Additional Information
EPC Rating:
D
Tenure:
Freehold
Council Tax Band:
E

Mortgage calculator

Calculate Your Stamp Duty
£
Results
Stamp Duty To Pay:
Effective Rate:
Tax Band % Taxable Sum Tax

Pinkneys Road, Maidenhead, SL6

Struggling to find a property? Get in touch and we'll help you find your ideal property.

Interested in viewing this property?
Book a Viewing
Main menu