2 bedroom Terraced House Sold STC

Jessie Road, Southsea, Portsmouth, PO4

Offers in excess of £225,000 | Sold STC

2 Bedrooms
1 Bathrooms
1 Receptions
Share Property

Portsmouth

33a Marmion Road, 
Southsea, 
PO5 2AT, 
Standout Features

Property Description

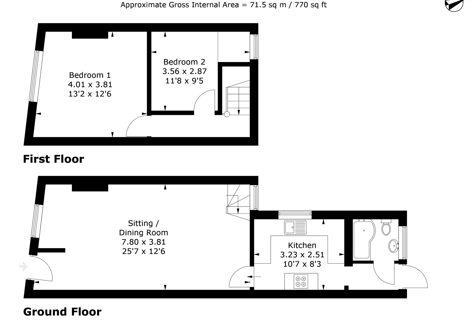
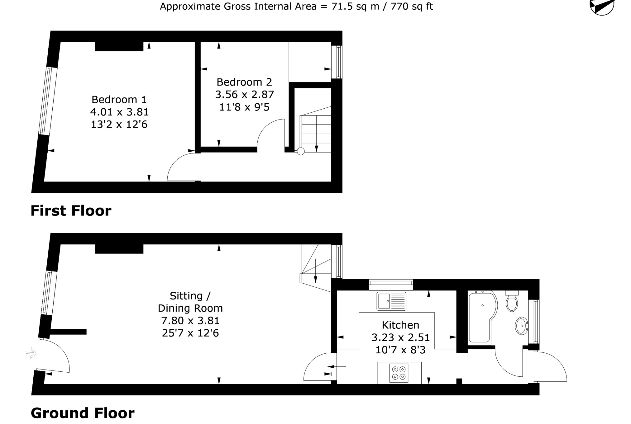
This well-presented two-bedroom home is ideally located in the heart of Southsea, offering stylish and practical living throughout. The property boasts a spacious lounge/dining room with elegant marble flooring, creating a bright and contemporary space perfect for both relaxing and entertaining. The bathroom is conveniently located on the ground floor, while to the rear is a low-maintenance garden, ideal for easy outdoor enjoyment. Upstairs, there are two well-proportioned bedrooms, with the second bedroom benefiting from a charming snug area—perfect for a home office, reading nook, or creative space. An excellent opportunity for those seeking a comfortable home in a central and sought-after location.

We endeavour to make our sales particulars accurate and reliable, however, they do not constitute or form part of an offer or any contract and none is to be relied upon as statements of representation or fact. Any services, systems and appliances listed in this specification have not been tested by us and no guarantee as to their operating ability or efficiency is given. All measurements have been taken as a guide to prospective buyers only, and are not precise. If you require clarification or further information on any points, please contact us, especially if you are travelling some distance to view. Fixtures and fittings other than those mentioned are to be agreed with the seller by separate negotiation. EPC rating: C. Council tax band: B, Tenure: Freehold,

Additional Information
EPC Rating:
C
Tenure:
Freehold
Council Tax Band:
B
Rooms
Lounge/Dining Room
7.8m x 3.8m (25'7" x 12'6")
Kitchen
3.2m x 2.5m (10'6" x 8'2")
Bathroom
Master Bedroom
4m x 3.8m (13'1" x 12'6")
Bedroom 2
3.6m x 2.9m (11'10" x 9'6")

Mortgage calculator

Calculate Your Stamp Duty
£
Results
Stamp Duty To Pay:
Effective Rate:
Tax Band % Taxable Sum Tax

Jessie Road, Southsea, Portsmouth, PO4

Struggling to find a property? Get in touch and we'll help you find your ideal property.

Interested in viewing this property?
Book a Viewing
Main menu