2 bedroom Flat For Sale

Wells Court, Pumphouse Crescent, Watford, Watford, WD17

Guide Price £270,000 | For Sale

2 Bedrooms
2 Bathrooms
1 Receptions
Share Property

Watford

2nd Floor, Centre Block,, 
Hille Business Estate, 132 St Albans Road,, 
Watford, 
WD24 4AE, 
Standout Features

Property Description

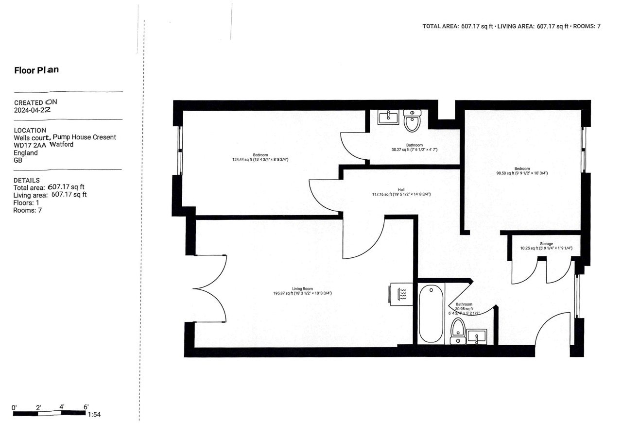
CHAIN FREE, Modern, Two bed, two bath apartment  located on a modern development in Central Watford. The property comprises: Modern fitted kitchen with white goods. Open plan lounge with wood flooring. Attractive private balcony. Wide hallway with storage cupboards. Two good-sized double bedrooms. Two modern bathrooms, both with shower facilities. In excellent condition throughout, the property has gas central heating, double glazing and use of secure private parking on the development. Located just 5 minutes walk to the town centre, local amenities and bus links, plus only 10 minutes walk to Bushey Station and Watford Junction! Call Belvoir to arrange a viewing.  EPC rating: B. Council tax band: D, Domestic rates: £2134.48, Tenure: Leasehold,

Additional Information
EPC Rating:
B
Tenure:
Leasehold
Council Tax Band:
D

Mortgage calculator

Calculate Your Stamp Duty
£
Results
Stamp Duty To Pay:
Effective Rate:
Tax Band % Taxable Sum Tax

Wells Court, Pumphouse Crescent, Watford, Watford, WD17

Struggling to find a property? Get in touch and we'll help you find your ideal property.

Interested in viewing this property?
Book a Viewing
Main menu