2 bedroom Bungalow For Sale

Camden Place, Calcot, Reading, RG31

Offers over £385,000 | For Sale

2 Bedrooms
2 Bathrooms
2 Receptions
Share Property

Tilehurst

209 Halls Road, 
Reading, 
Tilehurst , 
RG30 4PT, 
Standout Features

Property Description

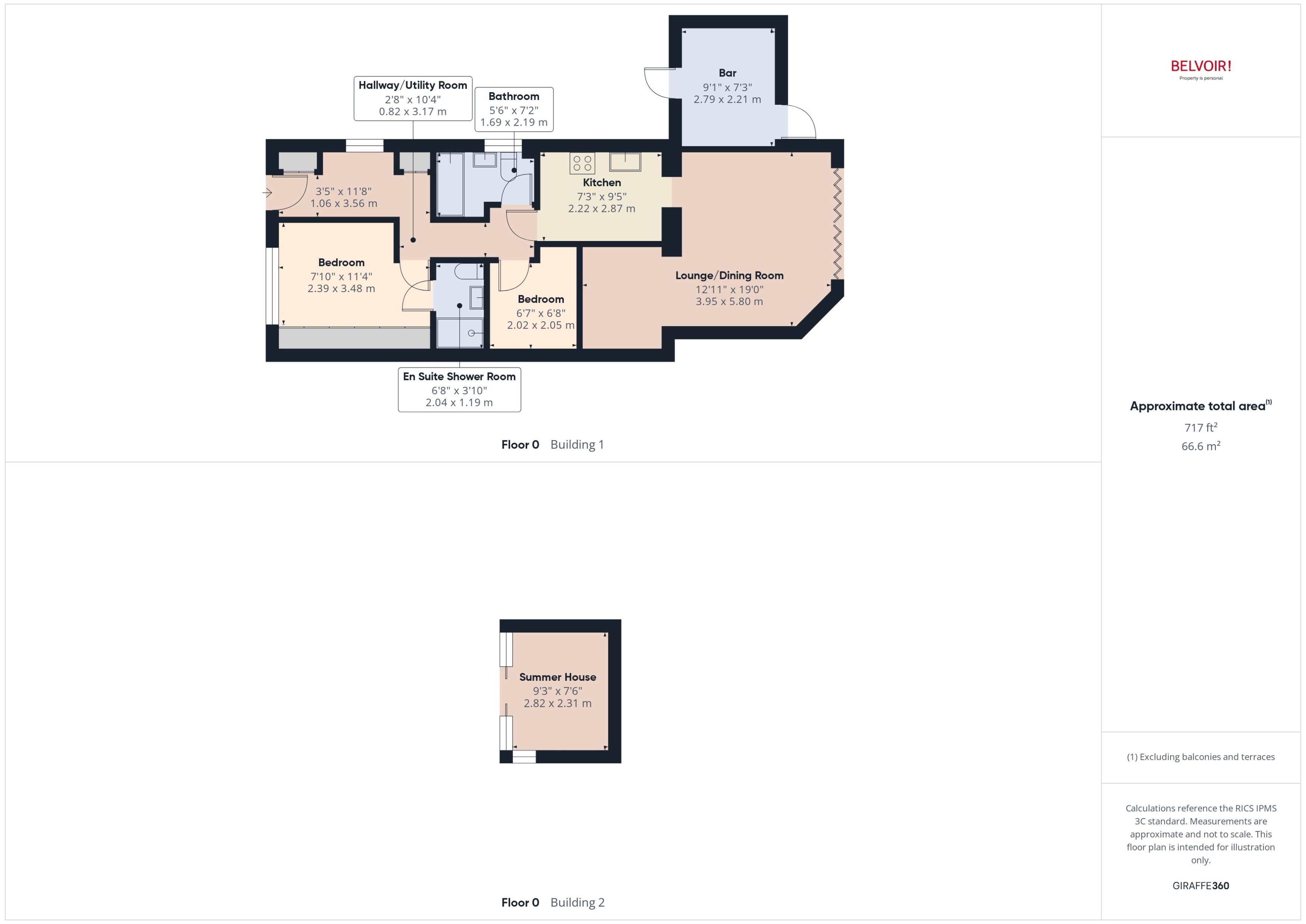
Belvoir Estate Agents are proud to bring to the market this superb semi detached bungalow which has a stunning luxury interior highly recommended for internal viewing. The extended and adaptable accommodation comprises of an entrance hall/utility room, lounge with bi folding doors, dining room, fitted kitchen, bathroom and two bedrooms with the main boasting an en suite shower room.

Outside to the front there is ample off road parking whilst to the rear there is a magnificent landscaped garden ideal for entertaining with a summer house and bar which is part of the garage conversion.

Camden Place is set in a cul-de-sac which has easy access to a variety of amenities which include; great local schools, a stone’s throw from the Holy Brook, Junction 12 of the M4 motorway, bus services into Reading Town centre and Sainsbury's supermarket.

Please note that all buyers attend property viewings at their own risk and must assess any hazards themselves.

We can refer you on to The Mortgage Advise Bureau for help with finance. We may receive a fee of £250.00 if you take out a mortgage through them. If you require a solicitor to handle your purchase we can refer you onto Setfords Solicitors. We may receive a fee of £250.00 if you use their services.

Please be advised that a fee of £80 including VAT will be charged to complete the necessary anti-money laundering and identity verification checks for prospective clients wishing to purchase through ourselves. This fee is non-refundable and is required to ensure compliance with legal obligations and regulatory standards.

  EPC rating: C. Council tax band: B, Tenure: Freehold,

Additional Information
EPC Rating:
C
Tenure:
Freehold
Council Tax Band:
B

Mortgage calculator

Calculate Your Stamp Duty
£
Results
Stamp Duty To Pay:
Effective Rate:
Tax Band % Taxable Sum Tax

Camden Place, Calcot, Reading, RG31

Struggling to find a property? Get in touch and we'll help you find your ideal property.

Interested in viewing this property?
Book a Viewing
Main menu