2 bedroom Shop For Sale

High Street, Andover, SP10

Guide Price £249,950 | For Sale

2 Bedrooms
Share Property

Andover

18 Bridge Street, 
Andover, 
SP10 1BH, 
Property Description

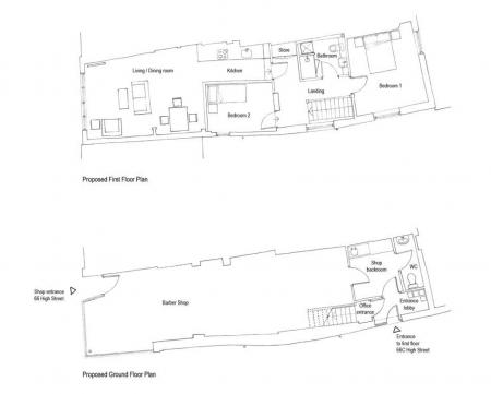
*** Residential Investment Opportunity with 2 Bed Planning ***

Prime, two-storey grade 2 listed premises with ground floor retail and first floor offices, presently both let to separate businesses. Planning permission in place to convert the upper floor into a self-contained 2 bedroom flat with the benefit of beautifully exposed original wood beams and separate access already in place.

Combined Rental Income: £27,336 per annum

Approx Residential value of flat once converted to two bed: £180,000 to £190,000

SERVICES

Mains electricity, water and sewerage.

ACCOMMODATION

Ground Floor Retail 600 sq ft (total)
First Floor Retail 559 sq ft (total)

TOTAL: 1159 sq ft (total)

ENERGY PERFORMANCE: C

 

RATING ASSESSMENT

Rateable Value from 01/04/2023
Ground: £10,500
First: £7,200

BID [BUSINESS IMPROVEMENT DISTRICT]

The premises are within a BID and are subject to a charge of 2% of the Rateable Value per year if the Rateable Value of the individual address is £10,000 or more.

TERMS

FOR SALE FREEHOLD

ABOUT ANDOVER

The town has become the home of the new administrative headquarters of the British Armys Land Forces and the Co-operative Groups new 43,484 m2 [467,891 ft2] distribution depot.

Many well known Companies are located in the Andover area including Agricultural Mortgage Corporation, Britax-Excelsior, Simplyhealth, Lloyds Banking Group, Londis, Office Depot, Petty Wood, Stannah Lifts and Twinings to name but a few.  

There are good road links to: London, the M25 and Heathrow & Gatwick Airports by the A303 dual-carriageway and M3; the West Country again by the A303; the major South Coast Ports of Southampton and Portsmouth by the A34/M3; and, the Midlands and the North by the A34/M40.  
Andover also has a mainline railway station on the London, Waterloo - Exeter line. London Waterloo in less than 1 hour  EPC rating: C. Council tax band: X, Tenure: Freehold,

Additional Information
EPC Rating:
C
Tenure:
Freehold

Mortgage calculator

Calculate Your Stamp Duty
£
Results
Stamp Duty To Pay:
Effective Rate:
Tax Band % Taxable Sum Tax

High Street, Andover, SP10

Struggling to find a property? Get in touch and we'll help you find your ideal property.

Interested in viewing this property?
Book a Viewing
Main menu