1 bedroom Flat Sold STC

Sylvan Avenue, London, N22

£375,000 | Sold STC

1 Bedrooms
1 Bathrooms
1 Receptions
Share Property

Enfield

Nicon House 45 Silver Street, 
Enfield, 
EN1 3EF, 
Standout Features

Property Description

Are you a first-time buyer looking for something that will suit you now and in the future? Or an investor looking for something you can add value to immediately? Or a downsizer looking for a larger than average one bedroom flat with an adorable private garden? Then read on.........

Available chain-free 

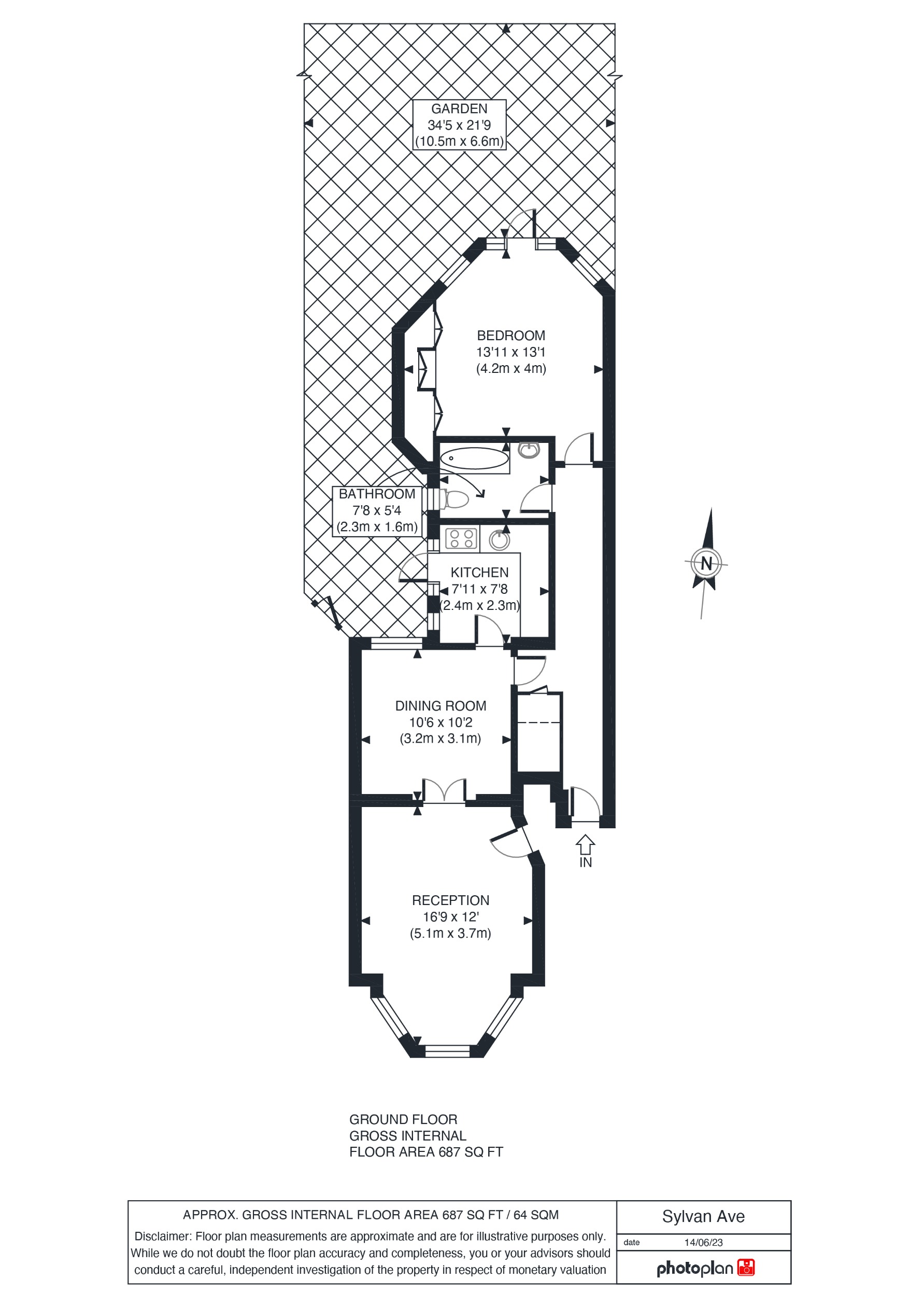
With so many flats in the area being presented as two bedrooms with a small lounge or even an average lounge open plan with the kitchen, this property bucks the trend.

The one bedroom is a very generous size double and the lounge is a through lounge. So, if you're a first-time buyer or downsizer, you have loads of room to entertain or work from home. And if you have friends or family who want to stay over, then the dividing doors between lounge and diner can be closed to give them some privacy.

Should the time come when a more permanent second bedroom would be useful, then you have the space to play with and just need to work through the options.

If you're an investor then this property is also ripe for adding value with a second bedroom right now, as two-bedroom rental properties in the area are extremely popular.

The basics are all in place with double glazing and gas central heating, a kitchen with door to garden, and a bathroom with shower over the bath and a good size window. 

With a touch of paint and some new flooring, this flat could be quite unique and personal to you.

However, the real beauty spot for this home is the private rear garden. It's an unexpected treat with a good size patio area, lawn, borders, a vegetable patch, a shed, and an apple tree.  

The location is ideal for so many things - the shops and buses on Green Lanes are at the end of the road (but you're far enough away so you can't hear the hustle and bustle), Wood Green and Bounds Green Tube Stations are within walking distance as is Bowes Park Train Station, and 'trendy' Myddleton Road with its market and delis is also nearby.

Available chain free and including the freehold for the whole building (ground and first floor).

 

  EPC rating: C. Council tax band: C, Tenure: Freehold,

Additional Information
EPC Rating:
C
Tenure:
Freehold
Council Tax Band:
C

Mortgage calculator

Calculate Your Stamp Duty
£
Results
Stamp Duty To Pay:
Effective Rate:
Tax Band % Taxable Sum Tax

Sylvan Avenue, London, N22

Struggling to find a property? Get in touch and we'll help you find your ideal property.

Interested in viewing this property?
Book a Viewing
Main menu