1 bedroom Flat For Sale

Commercial Road, The Docks, Gloucester, GL1

Guide Price £105,000 | For Sale

1 Bedrooms
1 Bathrooms
1 Receptions
Share Property

Gloucester

10 Worcester Street, 
Gloucester, 
GL1 3AA, 
Standout Features

Property Description

 Being Sold via Secure Sale online bidding. Terms & Conditions apply. Starting Bid £105,000

 

A fantastic investment opportunity or an ideal choice for a first-time buyer looking to step onto the property ladder!

Belvoir Gloucester are delighted to present this charming and characterful one-bedroom apartment, located on the fourth floor of the iconic Pridays Mill building. Dating back to the 1800s, the development offers a unique blend of historic architecture and modern-day living, right in the heart of Gloucester.

The property enjoys enviable views across both Gloucester Cathedral and the ever-popular Gloucester Docks, while inside the apartment provides light-filled, open-plan accommodation with dual sash windows.

Currently let with a tenant in situ paying £650pcm, this property represents a ready-made investment with strong rental potential.Accommodation

The apartment is thoughtfully designed to combine the character of a historic mill conversion with modern comforts.

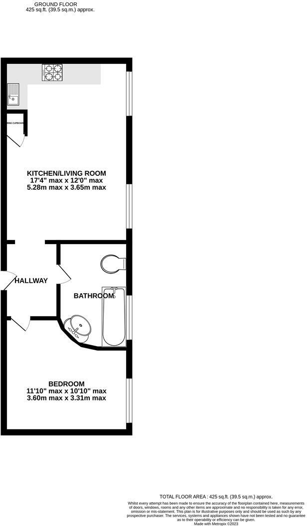
  • Open-Plan Living/Kitchen: A welcoming and versatile reception space with large sash windows drawing in natural light. The kitchen area is fitted with modern appliances, wall and base units, and ample preparation space.

  • Bedroom: A well-proportioned double room with character features and far-reaching views over Gloucester’s historic skyline.

  • Bathroom: A modern fitted bathroom with contemporary fixtures and finishes.

Additional Benefits
  • Historic building conversion with character features throughout

  • Secure entry system

  • Professional building management and maintenance

  • Central city location within walking distance of Gloucester Quays, shops, restaurants, and transport links

Additional InformationInvestment info: Tenant in situ paying £650pcm
Council Tax: Band A
Floor Area: 39sqm
Heating: Electric Heating
Tenure: Leasehold 
Managing Company: Ash & Co
Lease Length Remaining: 75 years remaining - Vendor happy to reach an agreement on paying for this to be extended. 
Service Charge Annually: £1816.80
Ground Rent Annually: £87.50
EPC Rating: D

This rare one-bedroom apartment offers the perfect balance of history, charm, and convenience in one of Gloucester’s most sought-after locations. Early viewing is highly recommended.

Auctioneers Additional Comments

Pattinson Auctions are working in Partnership with the marketing agent on this online auction sale and are referred to below as 'The Auctioneer'.

This auction lot is being sold either under conditional (Modern) or unconditional (Traditional) auction terms and overseen by the auctioneer in partnership with the marketing agent.

The property is available to be viewed strictly by appointment only via the Marketing Agent or The Auctioneer. Bids can be made via the Marketing Agents or via The Auctioneers website.

Please be aware that any enquiry, bid or viewing of the subject property will require your details being shared between both any marketing agent and The Auctioneer in order that all matters can be dealt with effectively.

The property is being sold via a transparent online auction. 

In order to submit a bid upon any property being marketed by The Auctioneer, all bidders/buyers will be required to adhere to a verification of identity process in accordance with Anti Money Laundering procedures. Bids can be submitted at any time and from anywhere. 

Our verification process is in place to ensure that AML procedure are carried out in accordance with the law.

The advertised price is commonly referred to as a ‘Starting Bid’ or ‘Guide Price’ and is accompanied by a ‘Reserve Price’. The ‘Reserve Price’ is confidential to the seller and the auctioneer and will typically be within a range above or below 10% of the ‘Guide Price’ / ‘Starting Bid’.

These prices are subject to change. 

An auction can be closed at any time with the auctioneer permitting for the property (the lot) to be sold prior to the end of the auction.

A Legal Pack associated with this particular property is available to view upon request and contains details relevant to the legal documentation enabling all interested parties to make an informed decision prior to bidding. The Legal Pack will also outline the buyers’ obligations and sellers’commitments. It is strongly advised that you seek the counsel of a solicitor prior to proceeding with any property and/or Land Title purchase.

Auctioneers Additional Comments

In order to secure the property and ensure commitment from the seller, upon exchange of contracts the successful bidder will be expected to pay a non-refundable deposit equivalent to 5% of the purchase price of the property. The deposit will be a contribution to the purchase price. A non-refundable reservation fee up to 6% inc VAT (subject to a minimum which could be up to £7,200 inc VAT) is also required to be paid upon agreement of sale. The Reservation Fee is in addition to the agreed purchase price and consideration should be made by the purchaser in relation to any Stamp Duty Land Tax liability associated with overall purchase costs.

Both the Marketing Agent and The Auctioneer may believe necessary or beneficial to the customer to pass their details to third party service suppliers, from which a referral fee may be obtained. There is no requirement or indeed obligation to use these recommended suppliers or services.

We endeavour to make our sales particulars accurate and reliable, however, they do not constitute or form part of an offer or any contract and none is to be relied upon as statements of representation or fact. Any services, systems and appliances listed in this specification have not been tested by us and no guarantee as to their operating ability or efficiency is given. All measurements have been taken as a guide to prospective buyers only, and are not precise. If you require clarification or further information on any points, please contact us, especially if you are travelling some distance to view. Fixtures and fittings other than those mentioned are to be agreed with the seller by separate negotiation. Belvoir and our partners provide a range of services to buyers, although you are free to use an alternative provider. For more information, simply speak to someone in our branch today. We can refer you on to The Mortgage Advice Bureau for help with finance. We may receive a fee of £200.00 if you take out a mortgage through them. If you require a solicitor to handle your purchase, we can refer you on to a variety of solicitors. We may receive a fee of £100 if you use their services. EPC rating: D. Council tax band: A, Tenure: Leasehold, Annual ground rent: £87.5, Annual service charge: £1816.8, Service charge description: Ash & Company, Length of lease (remaining): 89 years 4 months,

Additional Information
EPC Rating:
D
Tenure:
Leasehold
Ground Rent:
£87 per year
Service Charge:
£1,816 per year
Council Tax Band:
A

Mortgage calculator

Calculate Your Stamp Duty
£
Results
Stamp Duty To Pay:
Effective Rate:
Tax Band % Taxable Sum Tax

Commercial Road, The Docks, Gloucester, GL1

Struggling to find a property? Get in touch and we'll help you find your ideal property.

Interested in viewing this property?
Book a Viewing
Main menu