6 bedroom Terraced House To Let

Abbey Hill, Kenilworth, CV8

£2,355 PCM | To Let

Available Now

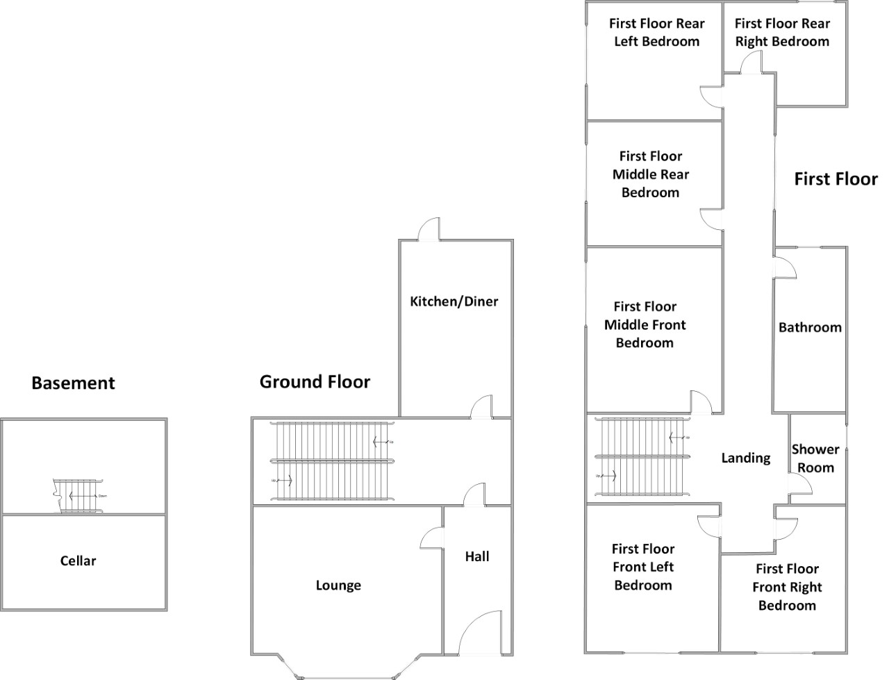
6 Bedrooms
2 Bathrooms
Share Property

Leamington Spa

22 Denby Buildings Regent Grove, 
Leamington Spa, 
CV32 4NY, 
Letting Details
Deposit:
£2,715
Property Description

Large six bedroom house, located in central Kenilworth, overlooking Abbey fields. This property has a spacious living area, hallway, and patio area great for storage.
High ceilings, lots of character!

The house has two large bathrooms and a kitchen/diner downstairs, and is only a short distance from the University Bus Stops to Campus.

11 month tenancy
1ST AUGUST 2025 - 30TH JUNE 2026

Holding deposit £540
Security Deposit £2715

Council Tax band D (Students are exempt but must prove status to Council).
To view the property, please contact Belvoir to book a viewing.

Utilities packages available via UniHomes- please contact Belvoir for details.
Contact Belvoir's student team for further information!
EPC rating: D. Council tax band: D,

Additional Information
EPC Rating:
D
Council Tax Band:
D

Abbey Hill, Kenilworth, CV8

Struggling to find a property? Get in touch and we'll help you find your ideal property.

Interested in viewing this property?
Book a Viewing
Main menu