5 bedroom Terraced House To Let

Viaduct Road

£2,999 PCM | To Let

Available from: 21st Sep, 2026

5 Bedrooms
2 Bathrooms
1 Receptions
Share Property

Brighton & Hove

119-120 Western Road, 
Hove, 
East Sussex, 
BN3 1DB, 
Letting Details
Deposit:
£3,460
Standout Features

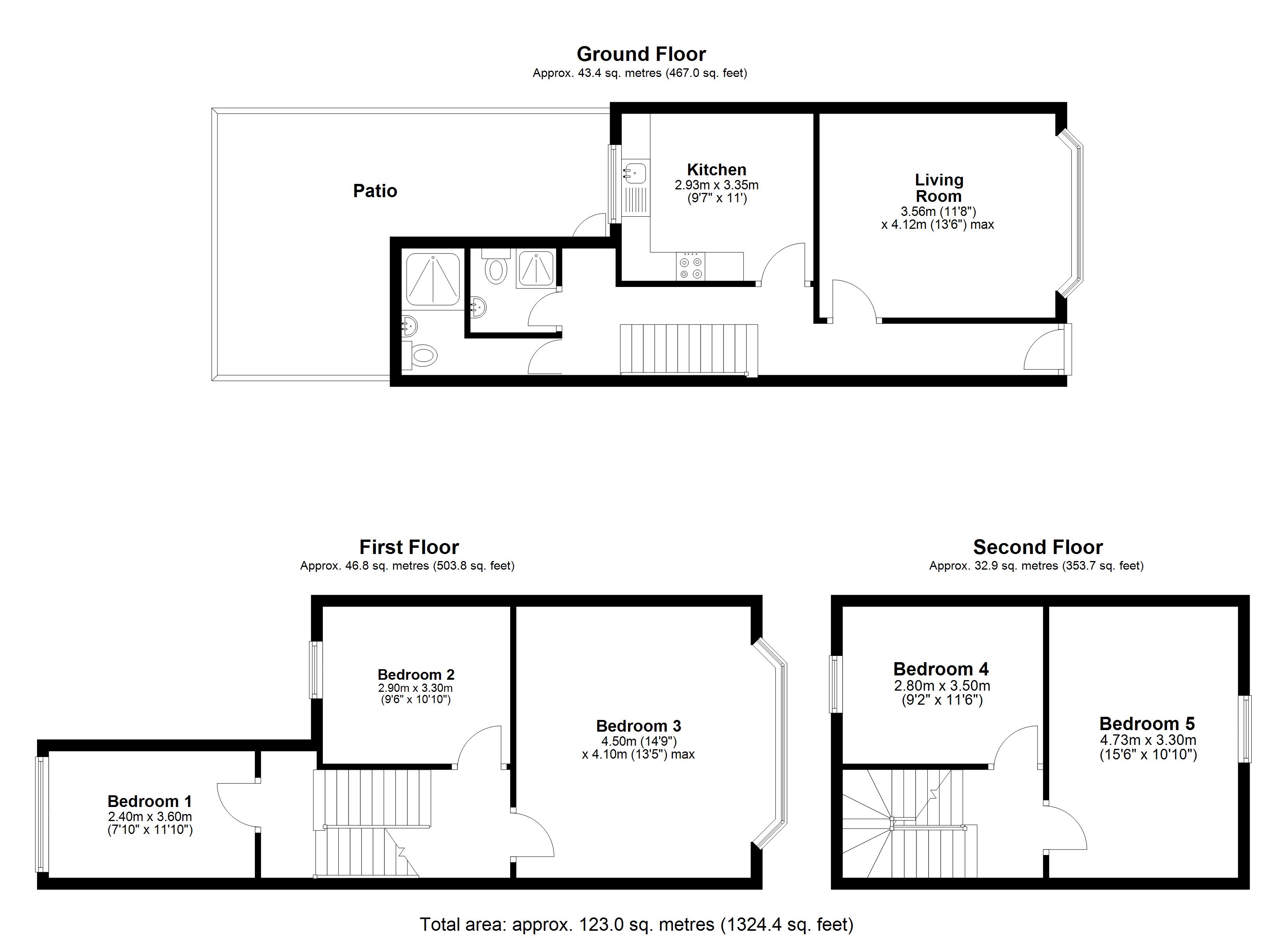
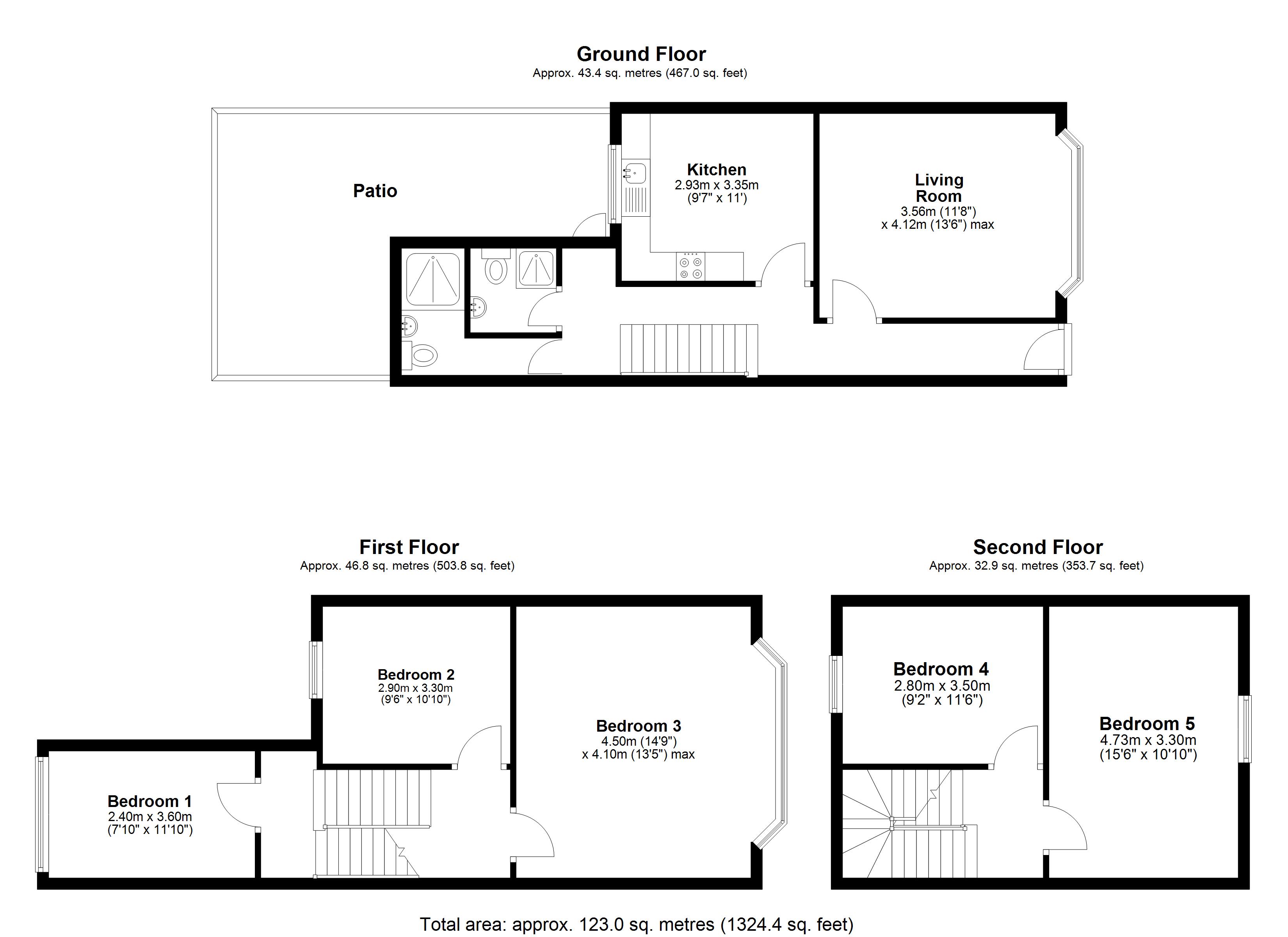
Property Description

A beautifully presented student property in sought after Preston Circus. Set over three floors, this fully furnished property comprises of five bedrooms, communal kitchen and dining space, bathroom and separate W/C, as well as a large, split level patio garden.
The living room boasts a 50 inch Flat screen TV and Fast Wifi.
The quality of this property, as well as its prime central location, really sets it apart from the rest. the London Road Railway Station is a 10 min walk and only 0.2 miles from the house.
How easy for Sussex and Brighton Uni Students to get to lectures!
Walking distance to The Level and all major bus routes linking the city centre and university campuses to the left. To the right, London road and its array of shops, bars and restaurants, walking distance of Brighton Mainline Railway, not to mention the fantastic Duke of York’s Cinema being within a three minute walk.

*No Deposit Option Available*

**Disclaimer**
Intending applicants will be asked to produce identification documentation for compliance purposes and we would ask for your co-operation in order that there will be no delay in completing the application process.
Items shown in photographs are NOT included unless specifically mentioned in writing within the particulars. They may however be available by separate negotiation.
All information, descriptions, dimensions and other particulars are given in good faith and are believed to be correct, but any intending renters, should not rely on them as statements or representations of facts, and must satisfy themselves by inspection or otherwise as to the correctness of each of them. Belvoir has not tested any services, equipment, fixtures and fittings included in the property so therefore no warranty can be given as to their condition or operation.
EPC rating: C. Council tax band: B,

Additional Information
EPC Rating:
C
Council Tax Band:
B

Viaduct Road

Struggling to find a property? Get in touch and we'll help you find your ideal property.

Interested in viewing this property?
Book a Viewing
Main menu