The Collection

5 bedroom Detached house To Let

Fir Toll Road, Mayfield, TN20

£3,750 PCM | To Let

Available from: 4th May, 2026

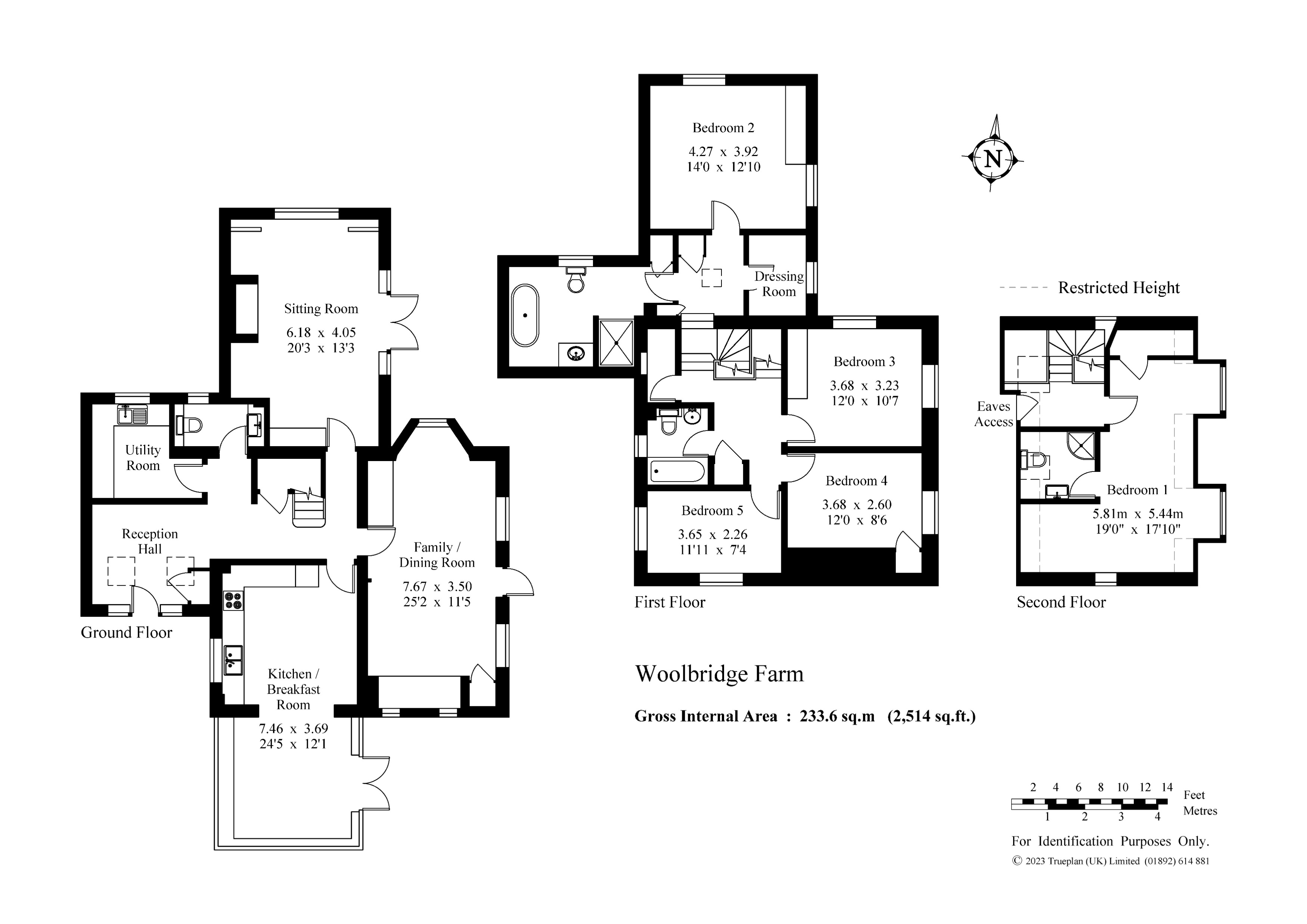
5 Bedrooms
3 Bathrooms
3 Receptions
Share Property

Tunbridge Wells

15-17 Vale Road, 
Tunbridge Wells, 
TN1 1BS, 
Letting Details
Deposit:
£4,326
Standout Features

Property Description

This substantial detached house presents an excellent opportunity for those seeking a spacious and well-appointed family home in a desirable rural location. Thoughtfully designed, the property offers five well-proportioned bedrooms and three bathrooms, ensuring ample accommodation for both family living and guest visits. The living space is enhanced by three generous public rooms that can be adapted to a range of uses, providing flexibility for relaxation, dining, entertaining, or workspace requirements. Each room benefits from double glazing, which contributes to a comfortable home environment. LPG Gas central heating is provided throughout, maintaining an inviting atmosphere year-round.

The large kitchen/conservatory is a great place to cook and entertain. There is a separate utility room and cloakroom located off the hallway.

A highlight of this property is the private, maintained garden (1 acre) which has a pond and lovely flower borders, offering a tranquil outdoor retreat with space for recreation, gardening, or outdoor dining. The driveway provides convenient off-street parking. The home is situated in a quiet location but within 1.5 miles of Mayfield balancing peace and practicality for everyday living.

Further benefits include the flexibility and adaptability afforded by the generous layout, including light and spacious interiors. Careful maintenance is evident, both inside and outside the home. A deposit of £4,038 is required, and the property is available from late April 2026, accommodating those planning ahead for a future move.

A paddock of approx'1 acre (close to the house) is available for £150pcm.

Local area:
Set within Mayfield, East Sussex, the property enjoys a highly regarded location known for its established residential settings and access to local services. Mayfield provides a welcoming environment with convenient facilities, providing a suitable balance of community and privacy. The locality benefits from green spaces and a peaceful character, making it an appealing choice for individuals and families. The property’s location allows for convenient travel and access to neighbouring towns within East Sussex and Tunbridge Wells is a 15-20 minute drive away., further enhancing its appeal as a refined residential destination. EPC rating: D. Council tax band: F,

Additional Information
EPC Rating:
D
Council Tax Band:
F

Fir Toll Road, Mayfield, TN20

Struggling to find a property? Get in touch and we'll help you find your ideal property.

Interested in viewing this property?
Book a Viewing
Main menu