3 bedroom Semi-detached house Let Agreed
£1,650 PCM | Let Agreed
Available Now
A charming and spacious character home in a village location with views to the front over the Thames Valley.
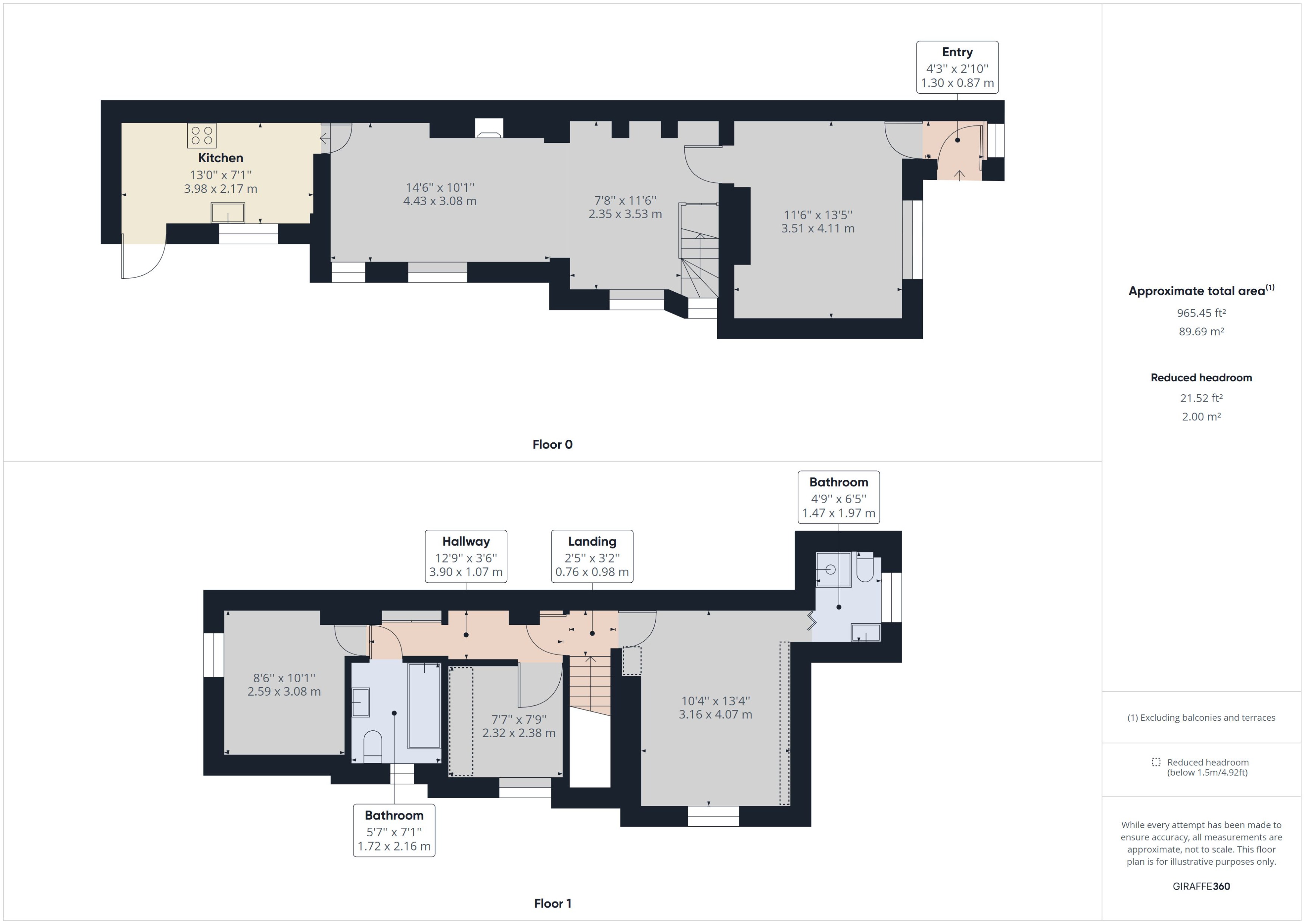
Entrance lobby leads to a large reception room with feature fireplace and wood block floor. A further large reception room benefits from a log burner and offers plenty of space for sofas and a dining table, brand new kitchen to the rear with ceramic electric hob and a range of base and eye level units. A stable door from the kitchen leads out to a courtyard area and then steps up to a decked seating area and the garden beyond.
Upstairs, the master bedroom has en-suite shower room and there is another double bedroom with storage as well as a single bedroom and a bathroom with shower over the bath.
Outside, the garden is large with lawn, fruit trees and flower beds. The garden slopes up to the rear with far reaching views over open countryside towards the river. To the front, driveway parking for 2 cars plus a single garage. The heating is from an air source heat pump.
Please note that all applicants who attend property viewings do at their own risk and must assess any hazards themselves. EPC rating: C. Council tax band: E, Domestic rates: £2153,
Struggling to find a property? Get in touch and we'll help you find your ideal property.