2 bedroom Maisonette To Let

Pentre Treharne Hill, Landore, Swansea, SA1

£675 PCM | To Let

Available Now

2 Bedrooms
1 Bathrooms
1 Receptions
Share Property

Swansea

101b Newton Road, 
Mumbles, 
SA3 4BN, 
Letting Details
Deposit:
£875
Standout Features

Property Description

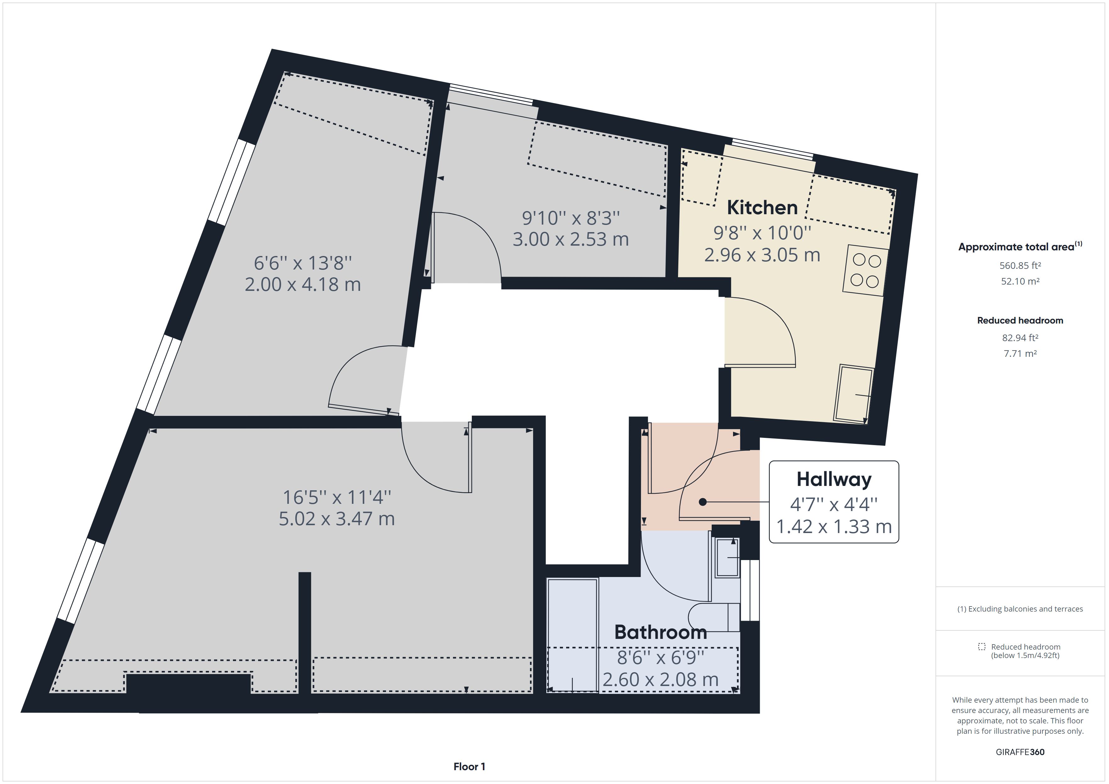
Belvoir are delighted to offer this fantastic two-bedroom maisonette situated in Landore that provides excellent links to Morriston Hospital, Morfa Retail Park, and J45 of the M4.

This flat comprises; an entrance hallway; an open-plan living/dining room; a well-appointed kitchen with space for white goods; a double bedroom; a single bedroom that could be used as an office, and a bathroom.

Externally there is on-street parking permit parking available.

The property benefits from being within close proximity of local amenities. Additionally, Morfa Retail Park is within approximately a 10-minute drive from the property.

Employers including the Morriston Hospital and the DVLA are within approximately a 15-minute drive from the property.

In terms of connectivity, Swansea city centre and J45 of the M4 are within approximately a 10-minute drive from the property.

The initial holding deposit for this property is one weeks' rent.

An opportunity to view this property should not be missed so contact a member of the team today to arrange a viewing!
EPC rating: D. Council tax band: A, Landlord Registration Number: #LR-77008-01322.

Additional Information
EPC Rating:
D
Council Tax Band:
A

Pentre Treharne Hill, Landore, Swansea, SA1

Struggling to find a property? Get in touch and we'll help you find your ideal property.

Interested in viewing this property?
Book a Viewing
Main menu